En vente Appartement 4 pièces 80 m2
Ville | SAINT NAZAIRE |
Code postal | 44600 |
Type de bien | Appartement |
Surface | 80 m2 |
Nombre de pièces | 4 pièces |
Prix | 447 000,00 € |
Informations sur l'annonceur | |
---|---|
Annonce de professionnel |
|
Agence | Thierry Immobilier Atlantique Voir toutes les annonces |
Adresse | 44 rue des Halles |
44600 SAINT NAZAIRE | |
Téléphone Fixe | 0228550290 |
Description
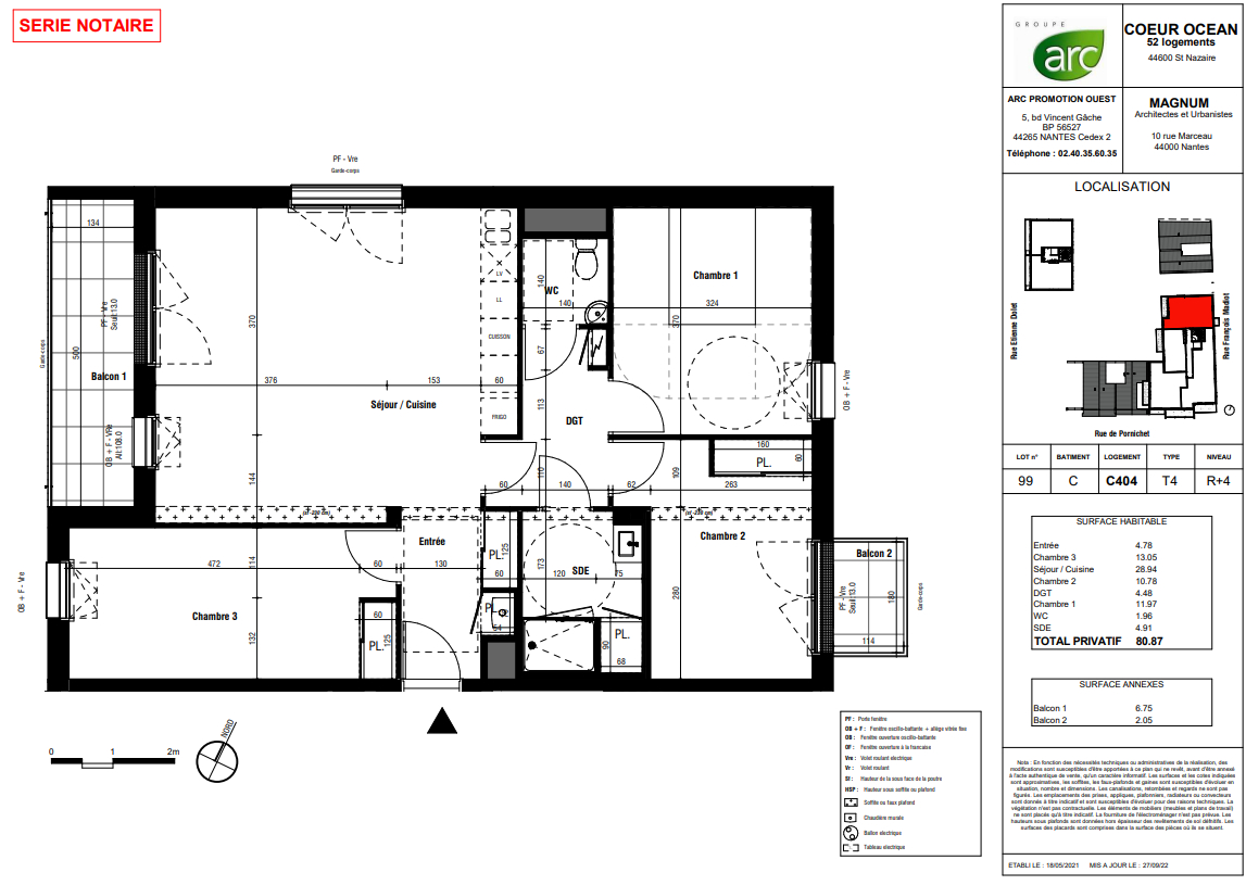
Résidence Coeur Océan. Au sein du Quartier de La Havane, nous vous proposons cet appartement 4 pièces de 81m². Situé au 4ème étage avec ascenseur, il comprend une entrée avec placard, une pièce de vie avec séjour et cuisine donnant sur un balcon exposé Ouest, 3 chambres dont une avec un balcon, une salle d'eau et des WC séparés. Un garage en sous-sol complète ce bien. Chauffage individuel au gaz. Résidence neuve, possibilité de visiter.
Les photos du bien
Les diagnostics
DPE
Bâtiment économe |
---|
![]() |
![]() 62 |
![]() |
![]() |
![]() |
![]() |
![]() |
Bâtiment énergivore |
en kWh.an/m².an |
GES
Faible émission de GES* |
---|
![]() |
![]() |
![]() 12 |
![]() |
![]() |
![]() |
![]() |
Forte émission de GES* |
* Gaz à effet de serre en KgeqCO2/m².an |