En location Boutique 4 pièces 1530 m2
| Ville | Bourgoin-Jallieu |
| Code postal | 38300 |
| Type de bien | Boutique |
| Surface | 1530 m2 |
| Nombre de pièces | 4 pièces |
| Prix | 8 500,00 € |
| Informations sur l'annonceur | |
|---|---|
| Annonce de professionnel |
|
| Agence | SARL BLOT L'IMMOBILIER Voir toutes les annonces |
| Adresse | 35 rue de la République |
| 38300 Bourgoin-Jallieu | |
| Téléphone Fixe | 0474438409 |
Description
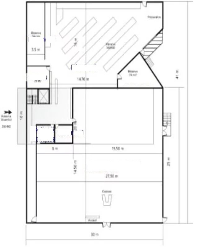
À Louer ou a vendre : Local Commercial Polyvalent à Ruy Montceau Description : Situé une Zone d’Activités sur la commune de Ruy Montceau, ce local commercial bénéficie d'une excellente visibilité et d’un emplacement stratégique le long de la Route Nationale. Avec sa configuration flexible, ce local est idéal pour accueillir une grande variété d'activités professionnelles : commerce, atelier, bureau, ou showroom. Bâtiment sur son propre terrain de 2800m² Quai de déchargement Bureau, vestiaire, sanitaire Monte-charge Façade bâtiment 30m Caractéristiques : Surface totale : 1530 m2 Surface de vente : 598 m2: possibilité de réduire la surface de stockage et d'agrandir la partie vente Surface Stockage : 532 m2 Surface sous-sol : 400 m2 Accessibilité : Proximité immédiate des grands axes routiers, facilitant l’accès pour vos clients et fournisseurs. Visibilité accrue : Local situé le long d’un axe à fort passage, offrant une visibilité optimale pour votre entreprise. Aménagements : Bureaux, espace de stockage, sanitaires. Possibilité d’aménagement selon les besoins spécifiques de votre activité. Parking privatif : Parking disponible pour vos employés et clients, facilitant l'accès au site. Parking 25 places en aérien, plus 25 places en sous-sol couvert Avantages : Emplacement stratégique dans une zone d'activités dynamique. Visibilité commerciale exceptionnelle grâce à sa situation sur la Route Nationale. Flexibilité d'aménagement pour s'adapter à diverses activités professionnelles. Conditions financières : Loyer mensuel HC/HT : 10 350€ Charges : 3500€ /an Taxe Foncière : 7500€ / an Bail : 3/6/9 ans Régime fiscal : TVA Contactez-nous dès aujourd'hui pour organiser une visite et découvrir tout le potentiel de ce local commercial !
Les photos du bien
Les diagnostics
| Energie non communiquée |
|---|
| Faible émission de GES* |
|---|
| -3 |
| |
| |
| |
| |
| |
| |
| Forte émission de GES* |
| * Gaz à effet de serre en KgeqCO2/m².an |
Les informations complémentaires
Local commercial