En vente Appartement 3 pièces 74 m2
| Ville | MONTGERMONT |
| Code postal | 35760 |
| Type de bien | Appartement |
| Surface | 74 m2 |
| Nombre de pièces | 3 pièces |
| Prix | 270 400,00 € |
| Informations sur l'annonceur | |
|---|---|
| Annonce de professionnel |
|
| Agence | BRETIL IMMO Voir toutes les annonces |
| Adresse | 6, Allée de La Haute Epine |
| 35500 VITRE | |
| Téléphone Fixe | 0299969338 |
Description
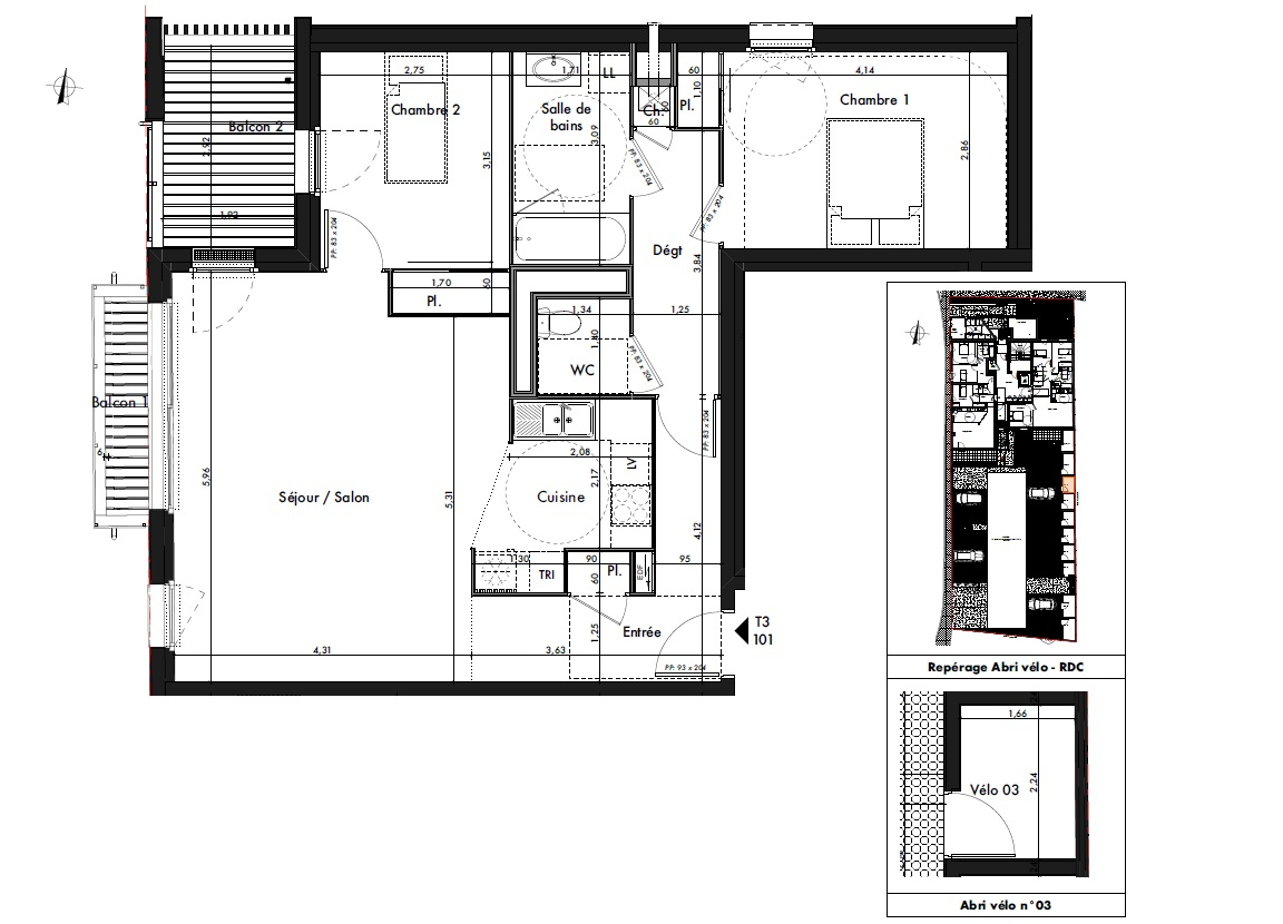
A VENDRE Appartement T3 à Montgermont (35760) Situé sur la commune prisée de Montgermont, à deux pas de toutes les commodités et des transports en commun de Rennes Métropole, venez découvrir ce bel appartement T3 de 75 m² environ, niché dans une résidence récente de 2020. Cet appartement lumineux offre une grande pièce de vie exposée ouest, idéale pour profiter de la lumière naturelle tout au long de la journée. La cuisine est aménagée et équipée, prête à accueillir vos repas en famille ou entre amis. Côté nuit, vous disposerez de deux chambres confortables, d'une salle d'eau moderne, ainsi que d'un WC séparé. Une agréable loggia complète le bien, offrant un espace extérieur à l'abri des regards. Une place de parking privative est incluse, un vrai plus au quotidien. Un cadre de vie idéal, au calme, tout en restant proche de Rennes et de ses accès. Pour plus d'informations ou organiser une visite, n'hésitez pas à nous contacter : 0622935604 BROSSAULT Alexandre - BRETILIMMO (4.00 % honoraires TTC à la charge de l'acquéreur.) Alexandre BROSSAULT (EI) Agent Commercial - Numéro RSAC : - .
Les photos du bien
Les diagnostics
| Bâtiment économe |
|---|
| |
| 77 |
| |
| |
| |
| |
| |
| Bâtiment énergivore |
| en kWh.an/m².an |
| Faible émission de GES* |
|---|
| |
| |
| 14 |
| |
| |
| |
| |
| Forte émission de GES* |
| * Gaz à effet de serre en KgeqCO2/m².an |