En vente Appartement 3 pièces 64 m2
Ville | COURBEVOIE |
Code postal | 92400 |
Type de bien | Appartement |
Surface | 64 m2 |
Nombre de pièces | 3 pièces |
Prix | 449 000,00 € |
Informations sur l'annonceur | |
---|---|
Annonce de professionnel |
|
Agence | ERA BECON-LES-BRUYERES Voir toutes les annonces |
Adresse | |
92400 Courbevoie | |
Téléphone Fixe | 0180887540 |
Portable | 0615872307 |
Description
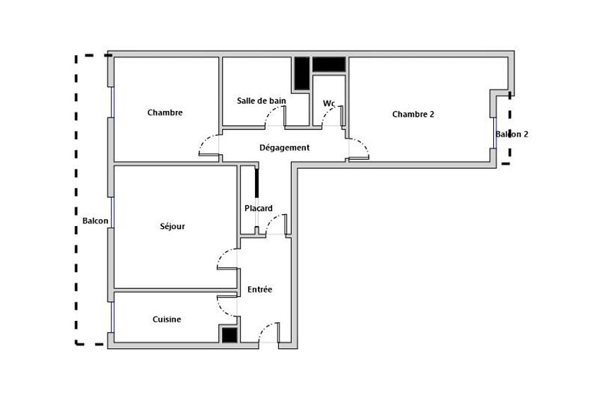
RUE DES FAUVELLES 92400 Courbevoie - BALCONS et DOUBLE BOX ERA Bécon les Bruyeres vous invites à visité en EXCLUSIVITE au sein d'une résidence des années 70, cet appartement 3 Pièces de 65 m². Situé au 5 étage avec ascenseur, offre un cadre de vie calme, lumineux et sans vis-à-vis. Photo généré par IA L'entrée mène à un séjour agréable, ouvrant sur une belle terrasse exposée sud la cuisine, actuellement séparée, peut facilement être ouverte pour créer une pièce de vie conviviale de plus de 20 m². L'espace nuit se compose de 2 chambres, bien séparées par un couloir avec rangements, ainsi qu'une salle de bains et des toilettes indépendantes. L'appartement est entièrement modulable, ce qui permet d'adapter l'agencement selon vos besoins. DPE C Une TERRASSES de plus de 7 m², ensoleillée et au calme Un DOUBLE BOX en sous-sol de 28 m² et une CAVE Transports à proximité : Train (Ligne L) : Gare de Courbevoie RER A et E / Métro ligne 1 / Tram T2 : Station La Défense ou Les Fauvelles Bus : lignes 73, 163, 176 et Noctilien N24 ? Pour plus d'informations ou pour organiser une visite : 06 15 87 23 07 Copropriété de 41 lots - dont 150 lots habitation. (Pas de procédure en cours). Charges annuelles : 2056 euros.
Les photos du bien
Les diagnostics
Bâtiment économe |
---|
![]() |
![]() |
![]() 140 |
![]() |
![]() |
![]() |
![]() |
Bâtiment énergivore |
en kWh.an/m².an |
Faible émission de GES* |
---|
![]() |
![]() |
![]() |
![]() 29 |
![]() |
![]() |
![]() |
Forte émission de GES* |
* Gaz à effet de serre en KgeqCO2/m².an |