En vente Maison 5 pièces

Ville Chennevières-sur-Marne
Code postal 94430
Type de bien Maison
Surface
Nombre de pièces 5 pièces
Prix 1 300 000,00 €
Informations sur l'annonceur
Annonce de professionnel
Agence France Immobilier
Voir toutes les annonces
Adresse 9 avenue de la Republique
94100 Saint-Maur-des-Fossés
Téléphone Fixe 0155960000

Description

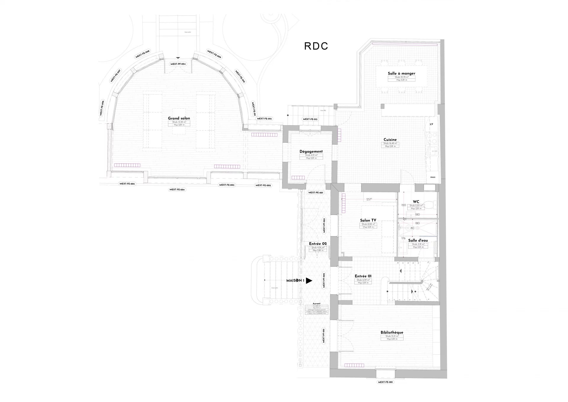
France immobilier Prestige vous dévoile une propriété hors du temps. Ancienne annexe du prestigieux château des Rets, cette magnifique demeure de caractère, nichée au cœur d’un écrin de verdure de 1 500 m² en copropriété, se distingue par son architecture unique qui mêle l’élégance du style néo-classique à l’audace anglo-normande. Entièrement rénovée, cette propriété divisée en deux maisons, offre sur l'une d'entre elles, 190 m² habitables avec au rez-de-chaussée: une entrée, un séjour traversant prolongé par une terrasse tournée vers la Marne, une cuisine ouverte, ainsi que trois chambres, dont une suite parentale en rotonde située à l’étage. À l’extérieur, le jardin offre un tableau vivant : Des bassins aux formes organiques. Une aire de barbecue agrémentée de terrasses et mobilier en pierre Un passage subtilement creusé sous la maison permet de relier les deux parties du jardin. Enfin en contrebas, un ponton privé sur la Marne prolonge le rêve: un lieu pour s’évader, voguer, ou simplement contempler. Chargé d'histoire, ce lieu a reçu de grands artistes, parmi eux, Serge Gainsbourg qui y a trouvé refuge un temps.

Les photos du bien

Les diagnostics


DPE
Energie non communiquée
GES
Faible émission de GES*
171
Forte émission de GES*
* Gaz à effet de serre en KgeqCO2/m².an