En vente Maison 6 pièces 132 m2

Ville SAINT PAUL
Code postal 97460
Type de bien Maison
Surface 132 m2
Nombre de pièces 6 pièces
Prix 799 000,00 €
Informations sur l'annonceur
Annonce de professionnel
Agence Patrimoine Expertise Immobilier
Voir toutes les annonces
Adresse 62 rue des Engagés
97434 SALINE LES BAINS
Portable 0693009553

Description

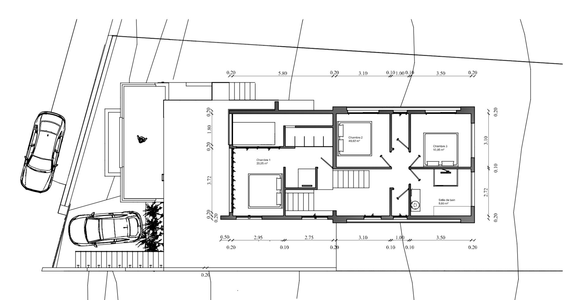
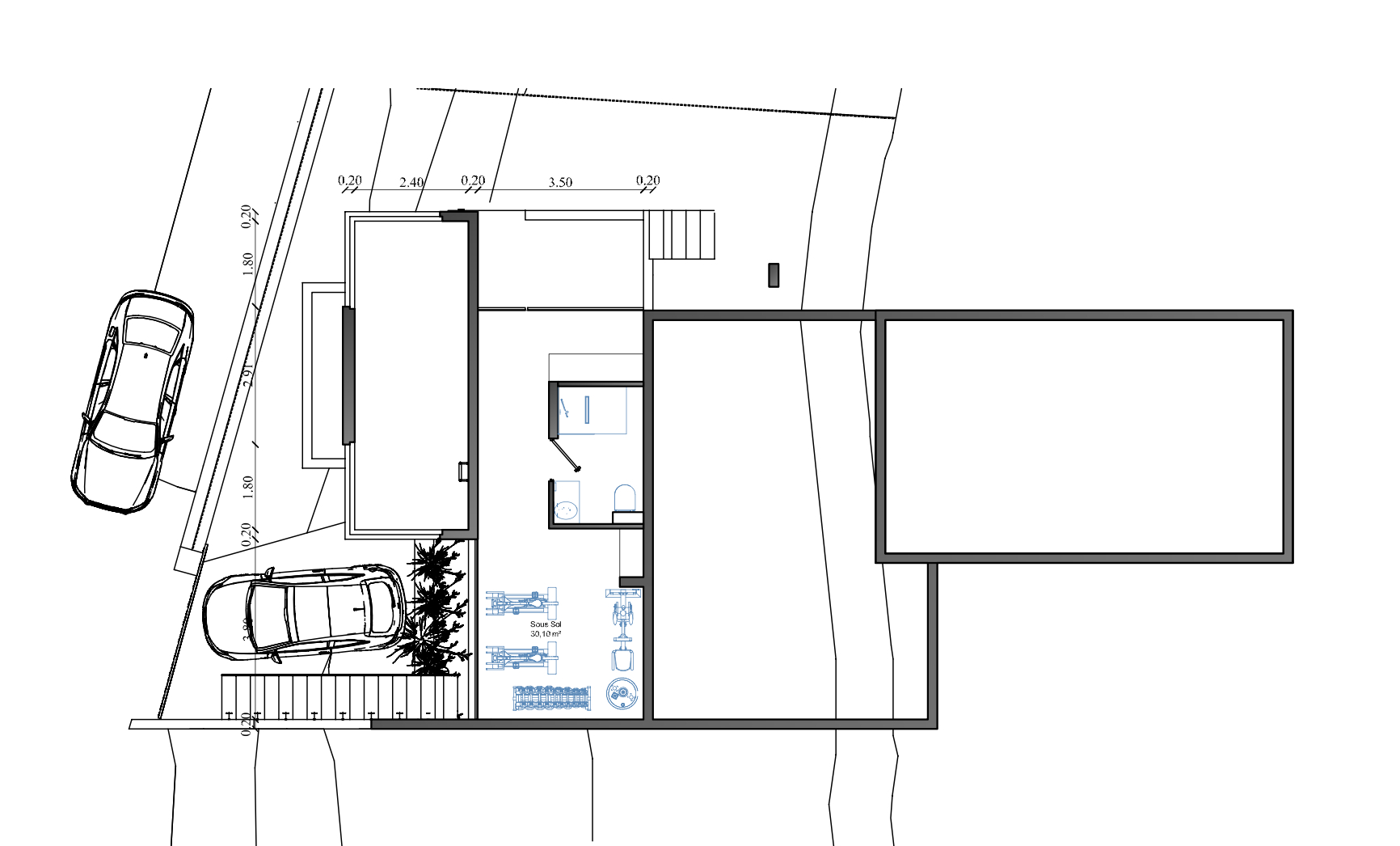
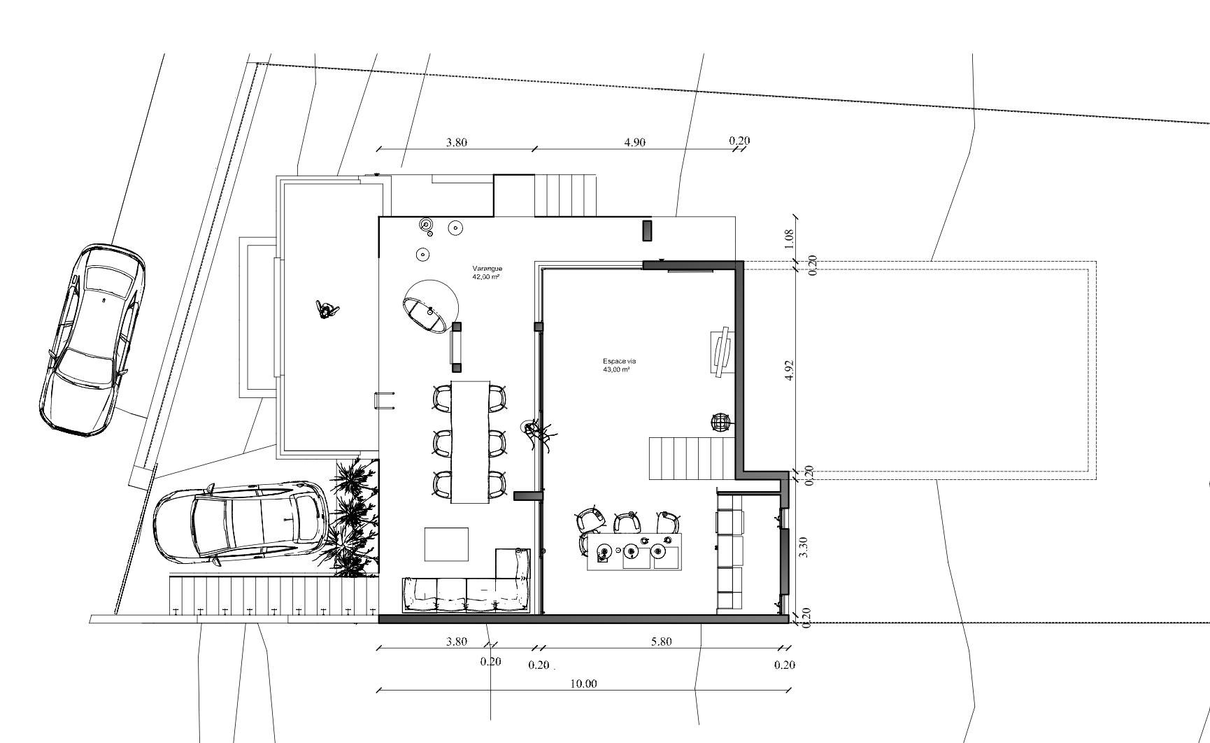
En exclusivité Si vous m'adoptez? Je suis une villa moderne et lumineuse, située à Villèle, sur les hauteurs de Saint-Paul. Actuellement en cours de construction, je serai livrée en décembre 2025. Je vous offrirai 4 chambres, 2 salles de bains, un vaste séjour + varangue de 85 m², une piscine et stationnement pour 2 véhicules. Située à 2 minutes de la route des Tamarins, je profite d'un cadre paisible, ventilé et bien desservi. Mes plus ? Garantie décennale, Éligible à la défiscalisation Girardin Is ou Crédit d'Impôt Outre Mer. Je n'attends plus que vous. Mon prix : 799 000 euros Honoraires d'agence inclus, à la charge du vendeur. Pour en savoir plus sur les risques naturels : www.georisques.gouv.fr Retrouvez nos maisons, appartements et terrains en vente ou en location à La Réunion (974) sur notre site ou en agence. Un seul mot d'ordre : votre bien-être.

Les photos du bien

Les diagnostics


DPE
Energie non communiquée
GES
GES non communiqué