En vente Maison 5 pièces 145 m2

Ville Lecci
Code postal 20137
Type de bien Maison
Surface 145 m2
Nombre de pièces 5 pièces
Prix 990 000,00 €
Informations sur l'annonceur
Annonce de professionnel
Agence Bastien CLESSI-BECONCINI
Voir toutes les annonces
Adresse
20144 Sainte-Lucie-de-Porto-Vecchio
Téléphone Fixe 33618358511

Description

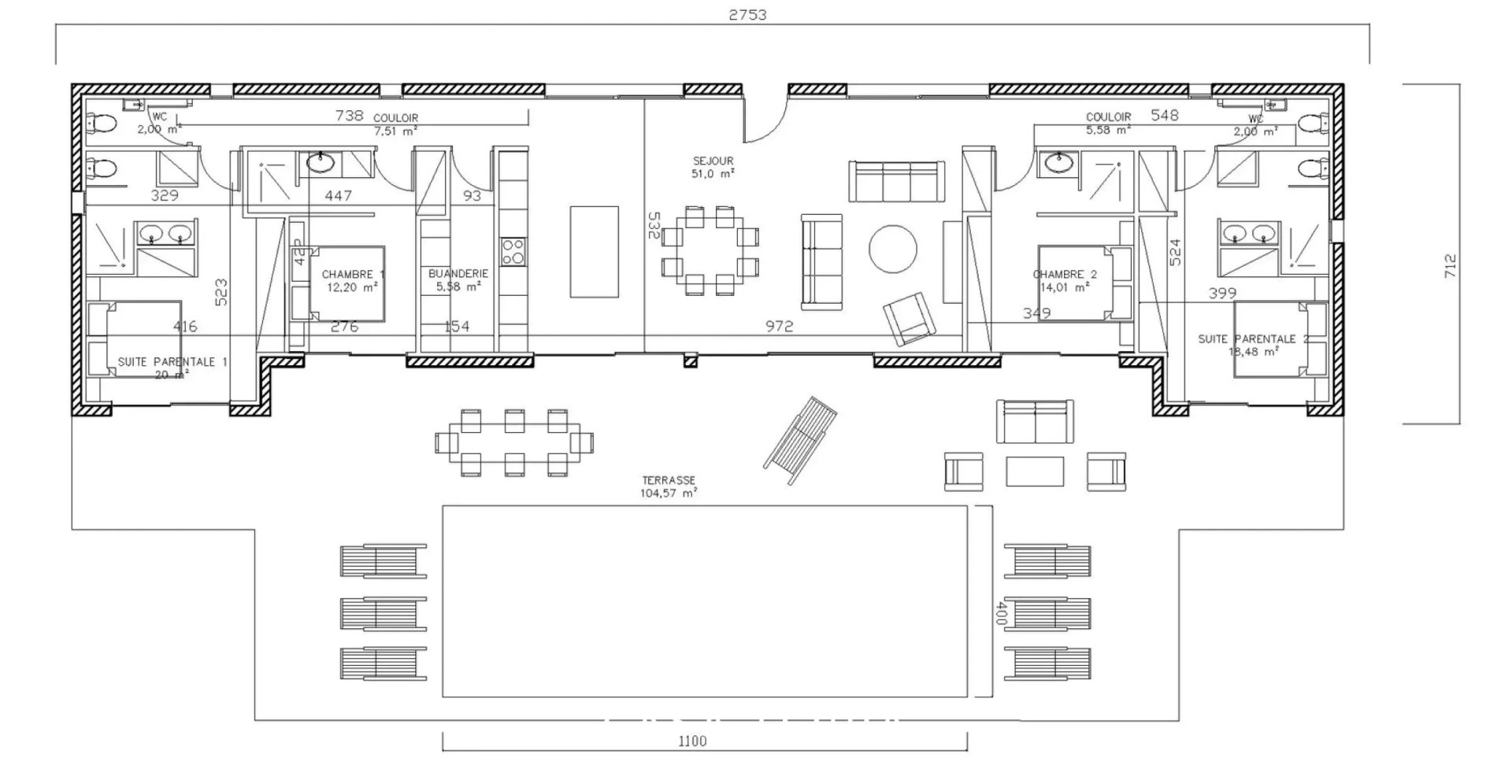
ALINIA - Villa avec piscine / Porto-Vecchio À seulement 5 minutes du centre de Porto-Vecchio et des premières plages, 'ALINIA' incarne une villa de standing fonctionnelle entre mer et maquis.

De plain-pied, 'ALINIA' développe 145 m² habitables sur un terrain plat de 1 000 m². Son agencement moderne et fonctionnel comprend 4 chambres dont une suite parentale, 4 salles d'eau, un vaste séjour lumineux avec cuisine ouverte, ainsi qu'un cellier attenant.

Les prestations sont à la hauteur : climatisation gainable, volets roulants électriques, menuiseries aluminium double vitrage, carrelage 60 x 60, chauffe-eau thermodynamique, terrasse en pin, portail coulissant motorisé avec interphone, assainissement individuel par micro-station. En option, 'ALINIA' peut s'habiller de pierre ou rester en enduit monocouche selon vos préférences. Possibilité également d'ajouter un garage.

À l'extérieur, la piscine coque de 10,5 x 4 m s'intègre harmonieusement au jardin paysager, créant un espace de détente idéal.

'ALINIA' bénéficie de frais d'acquisition réduits, d'une assurance Dommage-Ouvrage et de garanties décennales.

Le statut LMNP para-hôtelier avec récupération de TVA peut être mis en place.

D'autres lots sont également disponibles sur le programme.

Le dossier complet est disponible sur rendez-vous téléphonique ou directement en agence.

? Casa Terra, agence immobilière confidentielle spécialisée dans la transaction de biens de prestige, présente à Sainte-Lucie de Porto-Vecchio et à Paris ?

Les honoraires sont à la charge du vendeur.

Les photos du bien

Les diagnostics


DPE
Energie non communiquée
GES
GES non communiqué