En vente Immeuble 370 m2
Ville | Annecy |
Code postal | 74960 |
Type de bien | Immeuble |
Surface | 370 m2 |
Nombre de pièces | |
Prix | 1 050 000,00 € |
Informations sur l'annonceur | |
---|---|
Annonce de professionnel |
|
Agence | TRESORS IMMOBILIER Voir toutes les annonces |
Adresse | |
74210 DOUSSARD | |
Téléphone Fixe | 0450192585 |
Description
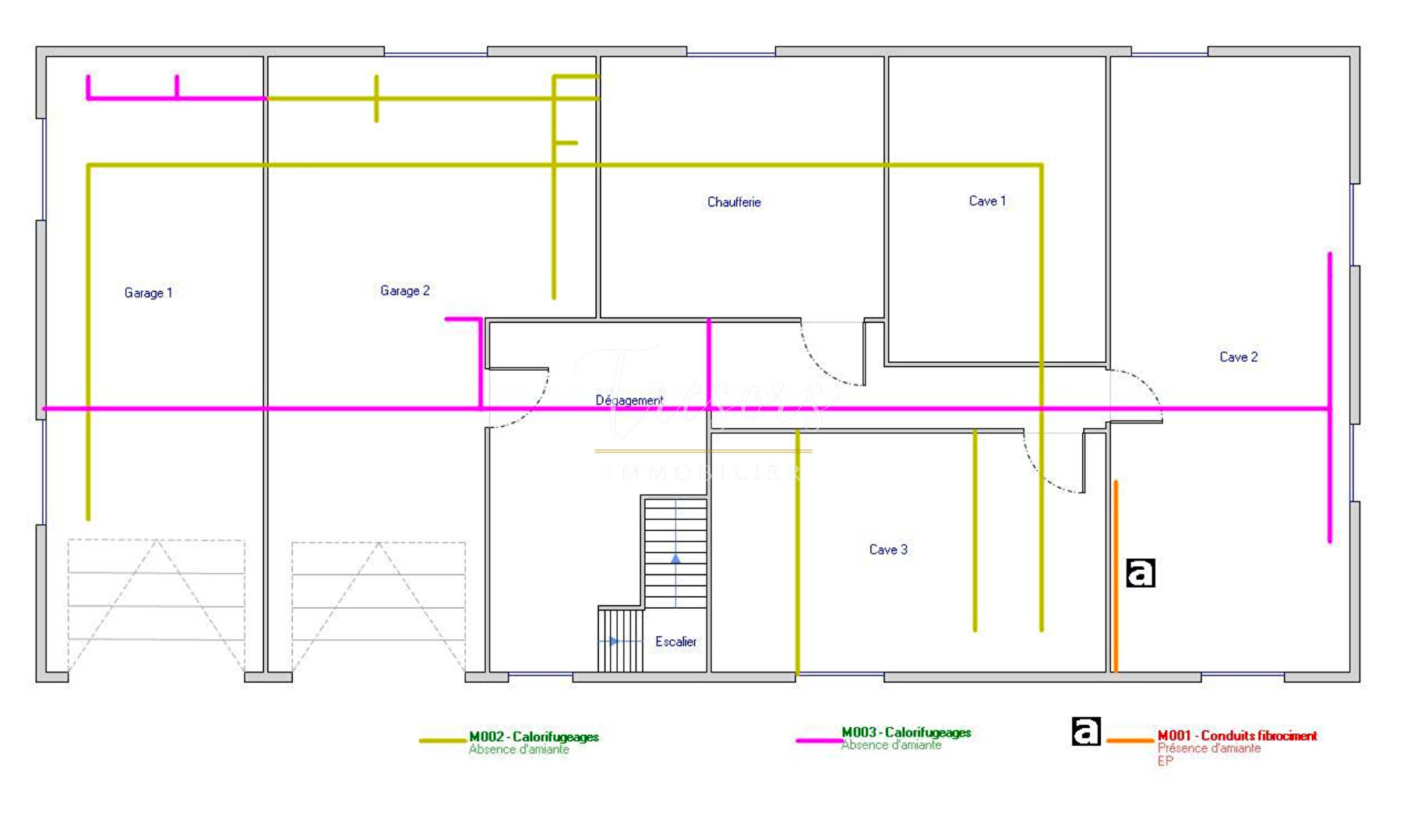
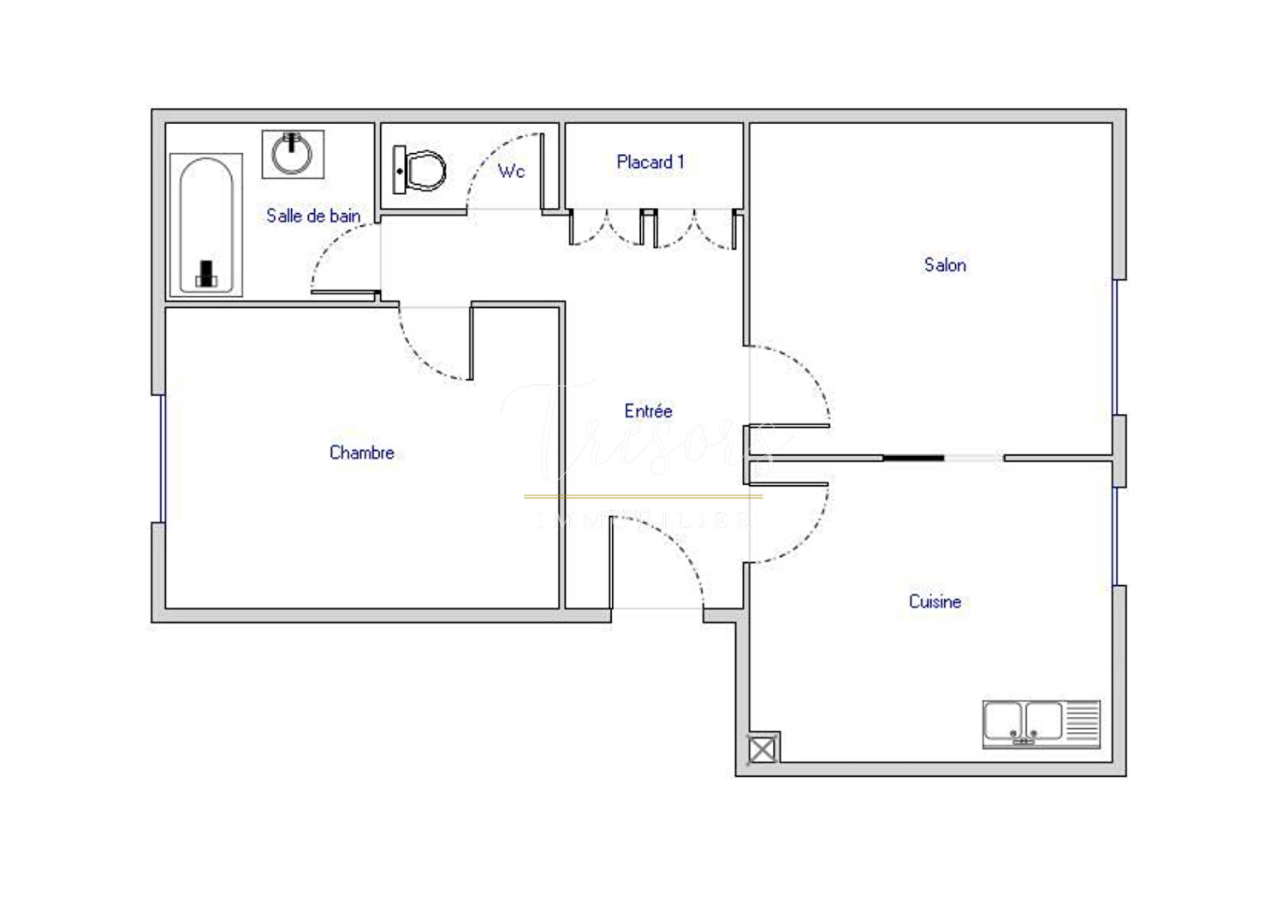
Annecy, L'agence TRESORS IMMOBILIER vous propose, sur la commune de Cran-gevrier, un immeuble divisé actuellement en 4 logements. Deux logements de Type T2 d'environ 55m2 et deux logements de type T3 de 85m2 facilement transformables en T4. Chaque logement bénéficie d'un grand balcon sur toute la longueur de la pièce de vie. L'immeuble est tourné face à un grand terrain plat de 1633 m2, arboré et sans vis à vis.Il compte également un sous sol complet composé de deux garages et 4 caves. Parking extérieurDe belles possibilités d'aménagement pour cet immeuble placé proche de toutes commodités, commerces, écoles, bus, axes routiers.Travaux à prévoir ! Carla MOGIN au 06 48 58 20 27 cmogin@tresorsimmobilier.com, EI RSAC 810138297 Annecy. Carla MOGIN (EI) Agent Commercial - Numéro RSAC : 810138297 - Annecy.
Les photos du bien
Les diagnostics
Bâtiment économe |
---|
![]() |
![]() |
![]() |
![]() 166 |
![]() |
![]() |
![]() |
Bâtiment énergivore |
en kWh.an/m².an |
Faible émission de GES* |
---|
![]() |
![]() |
![]() |
![]() |
![]() 50 |
![]() |
![]() |
Forte émission de GES* |
* Gaz à effet de serre en KgeqCO2/m².an |