En vente Appartement 2 pièces 49 m2
Ville | EPINAY SUR SEINE |
Code postal | 93800 |
Type de bien | Appartement |
Surface | 49 m2 |
Nombre de pièces | 2 pièces |
Prix | 219 500,00 € |
Informations sur l'annonceur | |
---|---|
Annonce de professionnel |
|
Agence | Reseau HB - BOUZIAD FARIDA Voir toutes les annonces |
Adresse | 16 allée des Charrons |
93390 CLICHY SOUS BOIS | |
Téléphone Fixe | 0749057465 |
Portable |
Description
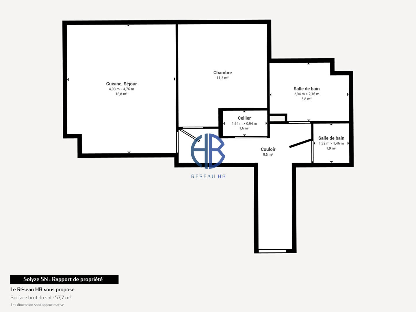
Appartement 2 pièces 49 m² - Balcon - Résidence 2018 - Secteur calme - Parking en option Le Réseau HB vous propose de découvrir ce charmant appartement 2 pièces de 48,29 m² (Surface Loi Carrez : 48,29 m², surface au sol : 54,61 m²), situé au 2? étage sur 5 avec ascenseur, dans une résidence récente et sécurisée construite en 2018. et est situé dans le quartier Le Cygne d'Enghien, à seulement 500 m du lac d'Enghien. Dès l'entrée ( 8,96 m²), vous serez conquis par le séjour lumineux, prolongé par une grande baie vitrée ouvrant sur le balcon. Cet espace chaleureux offre de belles possibilités d'aménagement : salon cosy, salle à manger conviviale ou bureau discret pour télé-travailler. La cuisine ouverte, aménagée avec goût et équipée plaques de cuisson, hotte, four, rangements), s'intègre harmonieusement au séjour. Sa conception moderne, saura combler ceux qui aiment cuisiner tout en profitant de la convivialité d'un espace ouvert. L'espace de réception et de vie totalise une superficie de 18,63 m². Depuis le séjour, un dégagement de 3,1 m² distribue l'espace nuit. Véritable transition entre les pièces de vie et la partie plus intime de l'appartement, il mène à la chambre et aux sanitaires. Cet espace pratique peut également accueillir des rangements supplémentaires, optimisant ainsi le confort du quotidien. Véritable cocon lumineux, l'espace nuit se compose d'une chambre spacieuse ( 11,33 m²,), à la fois calme et reposante. Elle offre de multiples possibilités d'aménagement et de décoration, permettant de créer un univers personnalisé selon vos envies. Facile à agencer, elle saura s'adapter aussi bien à un grand lit qu'à un coin dressing ou un espace lecture. A ce niveau, vous découvrirez des sanitaires conçus pour allier confort et fonctionnalité. La salle de bains (5,84 m²), élégante et contemporaine, invite à la détente grâce à sa baignoire idéale pour vos moments de relaxation. Elle est complétée par un meuble vasque moderne avec miroir lumineux, apportant à la fois style et praticité, ainsi qu'un espace dédié à l'installation d'un lave-linge pour optimiser l'organisation du quotidien. Les WC ( 1,97 m²,) séparés constituent un véritable atout supplémentaire, garantissant confort et intimité au quotidien. Une buanderie est également disponible pour ce bien . Avec ses 6,32 m², le balcon s'impose comme un véritable prolongement du séjour et se vit comme une pièce de vie à part entière. On peut y savourer un café ensoleillé, installer une petite table conviviale ou encore l'agrémenter de plantes pour créer un coin verdoyant et reposant et aussi profiter d'instants de détente en toute tranquillité. PRESTATIONS ET CONFORT MODERNE : Côté prestations, l'appartement offre des avantages recherchés : Résidence récente (2018), normes actuelles Copropriété de 79 lots dont 39 habitations 2 ème étage sur 5 avec ascenseur Copropriété sécurisée, accès parking par vigik Double vitrage et volets roulants Chauffage au gaz Eau chaude par chaudière individuelle au gaz Appartement en excellent état, aucun travaux à prévoir DPE réalisé le 22/09/2025 : Classe énergétique C Un parking privatif en sous-sol sécurisé est proposé en sus au prix de 10 000 euros. Les charges de copropriété s'élèvent à 400 euros par trimestre, et la taxe foncière à 1 519 euros. LOCALISATION: L'appartement bénéficie d'un emplacement privilégié à Épinay-sur-Seine, commune dynamique aux portes de Paris. A moins de 10 minutes à pied, le tramway T8 relie la station Saint-Denis?Porte de Paris (métro ligne 13) en une vingtaine de minutes. La gare RER C, située à environ 12 minutes de marche, permet de rejoindre Paris Saint-Michel?Notre-Dame en 25 minutes, tandis que la gare Transilien ligne H d'Épinay-Villetaneuse dessert Paris Gare du Nord en moins de 15 minutes. En voiture, les autoroutes A86 et A15 sont accessibles en quelques minutes, facilitant l'accès à Paris, La Défense et l'ensemble de l'Île-de-France. Commerces, supermarchés, écoles, équipements culturels et sportifs ainsi que de nombreux espaces verts, comme les berges de Seine ou le parc des Béatus, viennent compléter ce cadre de vie alliant praticité et qualité. » Un bien rare, parfaitement entretenu, qui séduira aussi bien les primo-accédants que les investisseurs à la recherche d'un produit sans travaux, prêt à emménager. Ce bien vous plaît ? Découvrez-le dès à présent en visite virtuelle et contactez-nous pour échanger ou organiser une visite sur place. Le Réseau HB, votre agence immobilière, reconnue pour son approche humaine, transparente et réactive, vous accompagne à chaque étape de votre projet. Honoraires à la charge du vendeur. Informations sur les risques disponibles sur : www.georisques.gouv.fr. Copropriété de 79 lots - dont 39 lots habitation. (Pas de procédure en cours). Charges annuelles : 59 euros. Farida BOUZIAD (EI) Agent Commercial - Numéro RSAC : 918 584 889 - .
Les photos du bien
Les diagnostics
Bâtiment économe |
---|
![]() |
![]() |
![]() 98 |
![]() |
![]() |
![]() |
![]() |
Bâtiment énergivore |
en kWh.an/m².an |
Faible émission de GES* |
---|
![]() |
![]() |
![]() 18 |
![]() |
![]() |
![]() |
![]() |
Forte émission de GES* |
* Gaz à effet de serre en KgeqCO2/m².an |