En vente Appartement 2 pièces 46 m2
Ville | MASSY |
Code postal | 91300 |
Type de bien | Appartement |
Surface | 46 m2 |
Nombre de pièces | 2 pièces |
Prix | 245 000,00 € |
Informations sur l'annonceur | |
---|---|
Annonce de professionnel |
|
Agence | L'Adresse MASSY OPERA - MASSY VILMORIN Voir toutes les annonces |
Adresse | 28 Avenue Raymond Aron - Place de l'Union Européenne |
91300 MASSY | |
Téléphone Fixe | 0169531010 |
Description
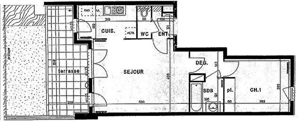
A VENDRE MANDAT EXCEL'ADRESSEMASSY ATLANTIS Dans Résidence de 2010 Appartement 2 pièces de 46 m² Calme et Lumineux en Rdj comprenant : Entrée, séjour sur terrasse et jardin de 26 m², cuisine américaine équipée, chambre, Sdb et WC indépendant. Très bon état, habitable de suite, emplacement de parking en sous-sol. Proche de toutes commodités. Idéal premier achat!!! Copropriété de 420 lots - dont 170 lots habitation. (Pas de procédure en cours). Charges annuelles : 2000 euros. Lucie HENO (EI) Agent Commercial - Numéro RSAC : 528 190 408 - EVRY.
Les photos du bien
Les diagnostics
DPE
Bâtiment économe |
---|
![]() |
![]() |
![]() |
![]() 156 |
![]() |
![]() |
![]() |
Bâtiment énergivore |
en kWh.an/m².an |
GES
Faible émission de GES* |
---|
![]() |
![]() 10 |
![]() |
![]() |
![]() |
![]() |
![]() |
Forte émission de GES* |
* Gaz à effet de serre en KgeqCO2/m².an |