En vente Appartement 4 pièces 70 m2

Ville SAINT SEBASTIEN SUR LOIRE
Code postal 44230
Type de bien Appartement
Surface 70 m2
Nombre de pièces 4 pièces
Prix 248 400,00 €
Informations sur l'annonceur
Annonce de professionnel
Agence L'Adresse Agence 230
Voir toutes les annonces
Adresse 13 avenue de la Martellière
44230 Saint Sébastien Sur Loire
Téléphone Fixe 0240805230

Description

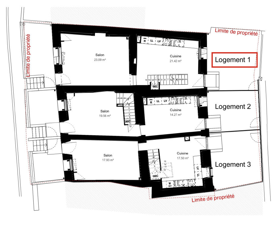
Vous rêvez d'une maison à personnaliser selon vos envies ? Ce projet est fait pour vous ! Dans le secteur recherché du Douet, à deux pas du busway, des commerces et des écoles, découvrez cette rénovation de trois maisons de ville. Vous avez le choix entre une maison de 88 m², une maison de 67 m² ou une maison de 65 m². Le prix affiché correspond à la plus petite surface. Les plans sont disponibles en image. Les gros travaux ont déjà été réalisés : la toiture est neuve, les menuiseries ont été remplacées, placo et isolation terminés, l'électricité sera terminée pour la livraison. Il ne vous reste plus qu'à finaliser les finitions afin de créer un intérieur qui vous ressemble. Prévoyez un budget de 15 000 à 20 000 euros pour les sols, la peinture, les radiateurs et les sanitaires selon vos envies. Imaginez-vous dans une maison fraîchement rénovée, prête à vivre, que vous personnalisez à votre goût. Un cadre de vie agréable, dans un quartier prisé, avec tous les services accessibles à pied. C'est une belle occasion de devenir propriétaire d'une maison rénovée avec soin, tout en gardant la liberté de choisir vos finitions et votre style. N'hésitez pas à nous consulter pour échanger plus en détail sur votre futur projet. Pour plus de renseignements merci de me contacter au 0673241681 ou par mail laurie.navinel@ladresse.com. (5.70 % honoraires TTC à la charge de l'acquéreur.)

Les photos du bien

Les diagnostics


DPE
Energie non communiquée
GES
GES non communiqué