En vente Appartement 2 pièces 40 m2
Ville | PARIS |
Code postal | 75002 |
Type de bien | Appartement |
Surface | 40 m2 |
Nombre de pièces | 2 pièces |
Prix | 423 000,00 € |
Informations sur l'annonceur | |
---|---|
Annonce de professionnel |
|
Agence | LA MAISON DE L'IMMOBILIER Voir toutes les annonces |
Adresse | 112 rue Réaumur |
75002 Paris | |
Téléphone Fixe | 0140390909 |
Portable | 0607916404 |
Description
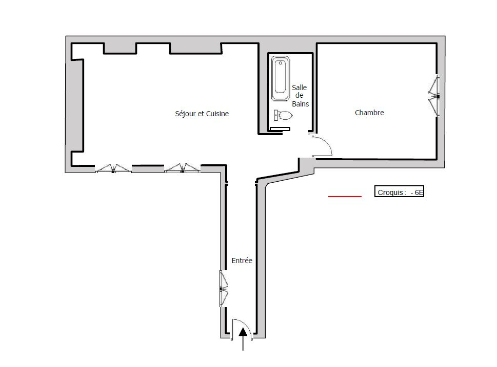
Proche du métro Sentier, en plein coeur du deuxième arrondissement de Paris, nous vous présentons ce charmant deux pièces situé au sixième étage sans ascenseur. Il s'agit d'un appartement au calme absolu. Il se compose d'une entrée, d'un séjour agréable et lumineux avec une cuisine ouverte aménagée. La pièce de vie bénéficie d'une belle clarté et d'une ambiance chaleureuse, idéale pour un quotidien paisible en plein Paris. Côté nuit, une chambre indépendante permet un vrai confort de vie. L'appartement dispose également d'une salle de bains avec WC. L'ensemble est cohérent, bien agencé. Ce bien séduira celles et ceux qui recherchent un appartement calme, central, bien entretenu, avec du charme, au coeur d'un quartier vivant et bien desservi. Contactez La Maison de l'Immobilier pour organiser une visite ou obtenir plus d'informations. La Maison de l'Immobilier est une agence indépendante spécialisée dans le centre de Paris. Nous proposons un accompagnement sur mesure, humain et réactif, pour chaque projet de location ou de vente. (4.44 % honoraires TTC à la charge de l'acquéreur.) Copropriété de 32 lots (Pas de procédure en cours). Charges annuelles : 652 euros.
Les photos du bien
Les diagnostics
Bâtiment économe |
---|
![]() |
![]() |
![]() |
![]() |
![]() |
![]() |
![]() 548 |
Bâtiment énergivore |
en kWh.an/m².an |
Faible émission de GES* |
---|
![]() |
![]() |
![]() 18 |
![]() |
![]() |
![]() |
![]() |
Forte émission de GES* |
* Gaz à effet de serre en KgeqCO2/m².an |