En vente Appartement 1 pièce 29 m2

Ville PARIS
Code postal 75018
Type de bien Appartement
Surface 29 m2
Nombre de pièces 1 pièce
Prix 290 000,00 €
Informations sur l'annonceur
Annonce de professionnel
Agence LA SIGNATURE
Voir toutes les annonces
Adresse
75018 PARIS
Téléphone Fixe 0186043112
Portable 0759504936

Description

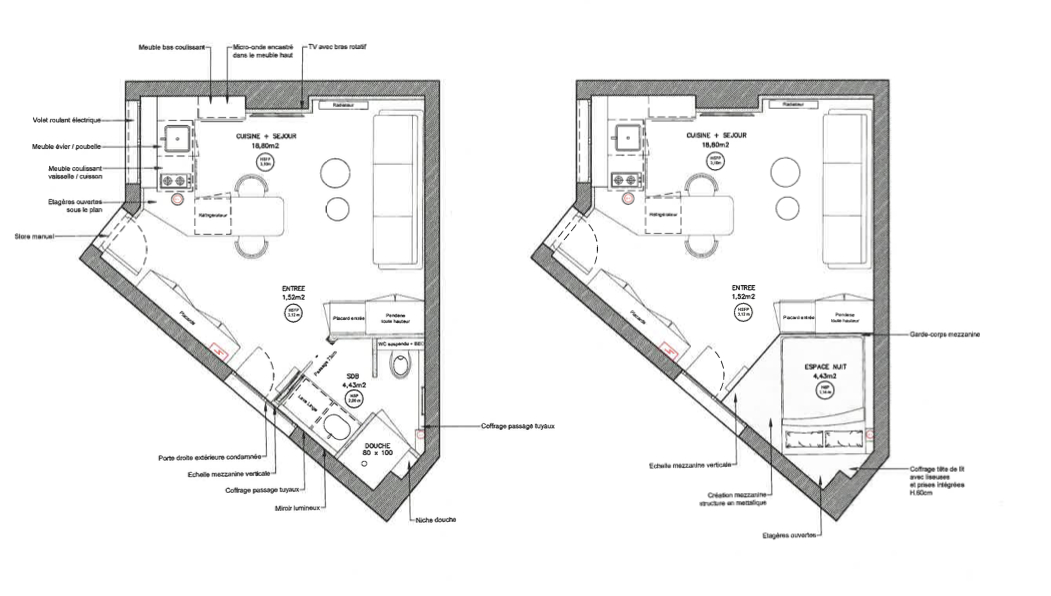
Paris 18ème - Au pied du métro Simplon et à 2mn à pied du quartier recherché de Jules Joffrin - LA SIGNATURE vous propose ce magnifique studio de 24,75M2 LC avec 3M de HSP et mezzanine de couchage de 4,43M2. Dans une copropriété ancienne bien entretenue, il est exposé Est sur une jolie cour, il est lumineux et au calme absolu. Il est composé d'un séjour avec cuisine US, une salle d'eau avec WC, un espace nuit en mezzanine. 1 cave. Aucuns travaux ne sont à prévoir il est vendu entièrement rénové avec goût et matériaux de qualité. (travaux en cours) Livré équipé et meublé. Le DPE sera de minimum D voir C car totalement isolé par l'intérieur. Une perle à visiter très rapidement! (5.45 % honoraires TTC à la charge de l'acquéreur.) Copropriété de 21 lots - dont 17 lots habitation. (Pas de procédure en cours). Charges annuelles : 670 euros. Véronique MULLER (EI) Agent Commercial - Numéro RSAC : - .

Les photos du bien

Les diagnostics


DPE
Energie non communiquée
GES
GES non communiqué