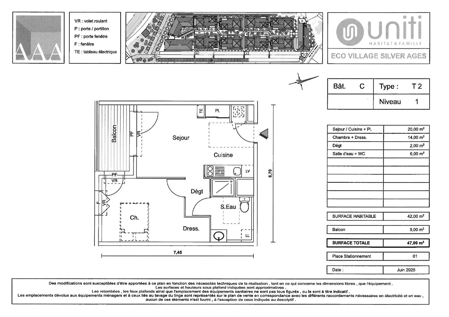
En location Appartement 2 pièces 42 m2

Ville CASTELGINEST
Code postal 31780
Type de bien Appartement
Surface 42 m2
Nombre de pièces 2 pièces
Prix 585,00 €
Informations sur l'annonceur
Annonce de professionnel
Agence L'Adresse Claire B Immobilier - L'Adresse Claire B Immobilier
Voir toutes les annonces
Adresse 1 rue du pont Vieil
31780 CASTELGINEST
Téléphone Fixe 0561451669

Description

A louer au Coeur du Centre Ville de Castelginest Bel Appartement de Type 2 Neuf dans une Résidence Arborisée, Sécurisée et Calme. Le Logement est Composé d'1 Pièce Principale avec Cuisine ouverte Aménagée (plaque vitrocéramique, hotte, meubles de rangement) 1 Séjour Lumineux avec accès Balcon, 1 Grande Chambre de 14m², 1 Salle d eau avec wc. Le bien Disponible est équipé d'un chauffe-eau thermodynamique et d 'une climatisation Dépôt de Garantie : 585 euros (représentant 1 loyer hors charge) Honoraires Agence : 442 euros (comprenant visite, constitution du dossier, rédaction du bail, état des lieux) Loyer Charges Comprises : 655 euros Visite possible au locationcbi@ladresse.com ou 05.61.45.16.69

Les photos du bien

Les diagnostics


DPE
Energie non communiquée
GES
GES non communiqué