En vente Maison 5 pièces 137 m2
Ville | CHATEAU LA VALLIERE |
Code postal | 37330 |
Type de bien | Maison |
Surface | 137 m2 |
Nombre de pièces | 5 pièces |
Prix | 119 000,00 € |
Informations sur l'annonceur | |
---|---|
Annonce de professionnel |
|
Agence | AFICO Voir toutes les annonces |
Adresse | 40 rue de Bordeaux |
37000 Tours | |
Téléphone Fixe | 0247050969 |
Portable | 0620796480 |
Description
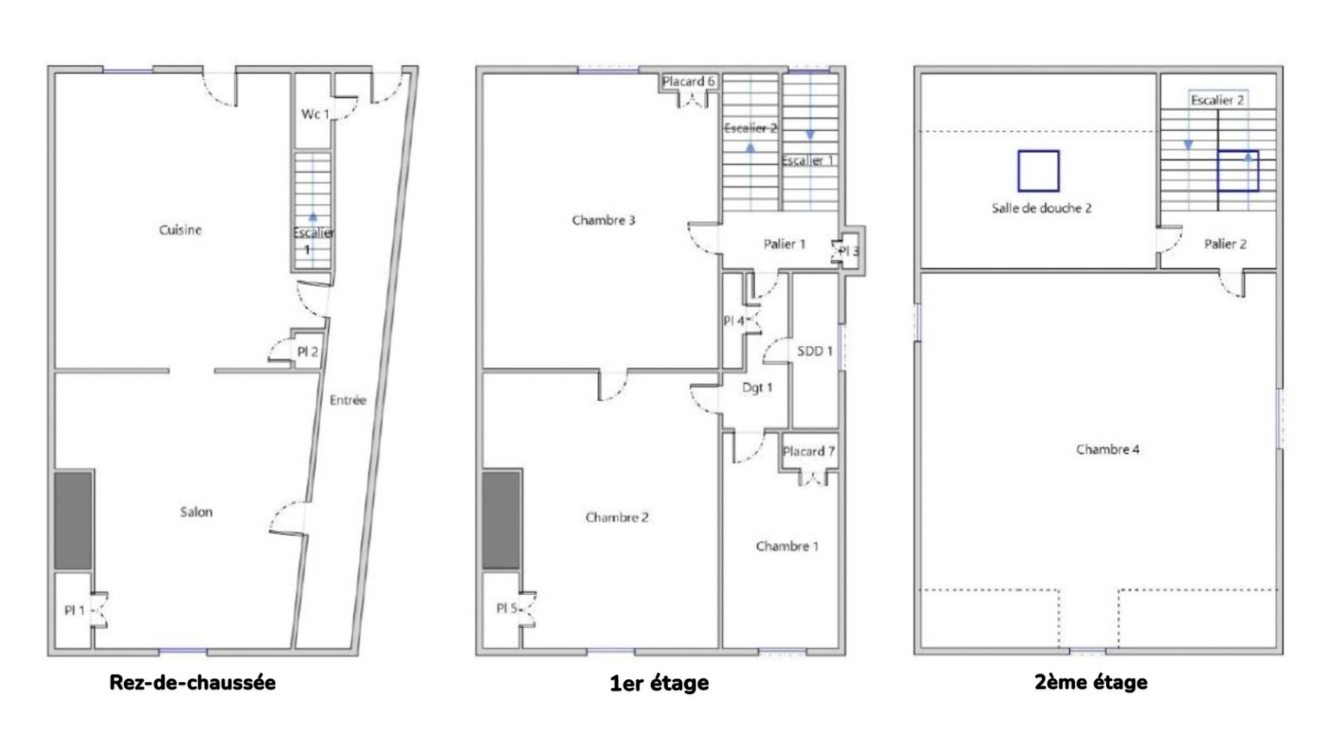
Charmante maison centre bourg avec son petit jardin cosy et sa dépendance. Celle-ci se compose au rez de chaussée d'un salon- séjour, cuisine pouvant être ouvert pour se retrouver autour d'un bel espace de 35 m² et donnant sur l'extérieur. Au 1er étage, un palier desservant 2 belles chambres avec parquet et cheminée, salle d'eau et un espace bureau. Au 2nd, totalement rénové en 2009, une très belle chambre de 35 m² (au sol) et une salle d'eau avec Wc. Cave gravillonnée. (6.25 % honoraires TTC à la charge de l'acquéreur.)
Les photos du bien
Les diagnostics
DPE
Bâtiment économe |
---|
![]() |
![]() |
![]() |
![]() 192 |
![]() |
![]() |
![]() |
Bâtiment énergivore |
en kWh.an/m².an |
GES
Faible émission de GES* |
---|
![]() |
![]() |
![]() |
![]() |
![]() 41 |
![]() |
![]() |
Forte émission de GES* |
* Gaz à effet de serre en KgeqCO2/m².an |