En vente Appartement 1 pièce 24 m2
Ville | PARIS |
Code postal | 75018 |
Type de bien | Appartement |
Surface | 24 m2 |
Nombre de pièces | 1 pièce |
Prix | 199 500,00 € |
Informations sur l'annonceur | |
---|---|
Annonce de professionnel |
|
Agence |
JPR Immobilier Paris - JPR IMMOBILIER
Voir toutes les annonces |
Adresse | 106, rue Blomet |
75015 Paris | |
Téléphone Fixe | +33177377140 |
Portable | +336122243 |
Description
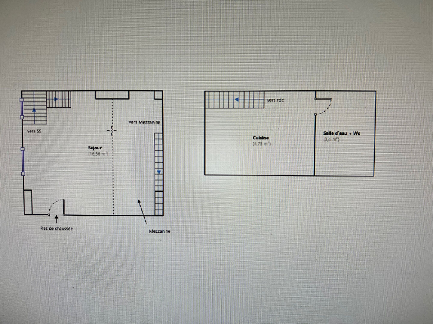
JPR IMMOBILIER vous propose un beau studio de 35.26m² au sol et 24.71m² loi carrez, dans un immeuble ancien, Rue de Clignancourt, dans un immeuble ancien, un appartement en rdc plus sous sol, composé d'une pièce principale sur rue, d'une cuisine aménagée et d'une salle bains avec wc en sous sol. Chauffage et eau chaude individuel électrique. Idéal investissement locatif Charges 255 euros/trimestre Copropriété de 25 lots - dont 24 lots habitation. (). Charges annuelles : 1050 euros.
Les photos du bien
Les diagnostics
DPE
Bâtiment économe |
---|
![]() |
![]() |
![]() |
![]() |
![]() |
![]() |
![]() 567 |
Bâtiment énergivore |
en kWh.an/m².an |
GES
Faible émission de GES* |
---|
![]() |
![]() |
![]() 18 |
![]() |
![]() |
![]() |
![]() |
Forte émission de GES* |
* Gaz à effet de serre en KgeqCO2/m².an |