En vente Appartement 3 pièces 58 m2
| Ville | Paris |
| Code postal | 75006 |
| Type de bien | Appartement |
| Surface | 58 m2 |
| Nombre de pièces | 3 pièces |
| Prix | 1 530 000,00 € |
| Informations sur l'annonceur | |
|---|---|
| Annonce de professionnel |
|
| Agence | PARIS LUXURY HOMES - PARIS LUXURY HOMES Voir toutes les annonces |
| Adresse | 8 place des Victoires |
| 75002 PARIS | |
| Téléphone Fixe | |
| Portable | 0664970111 |
Description
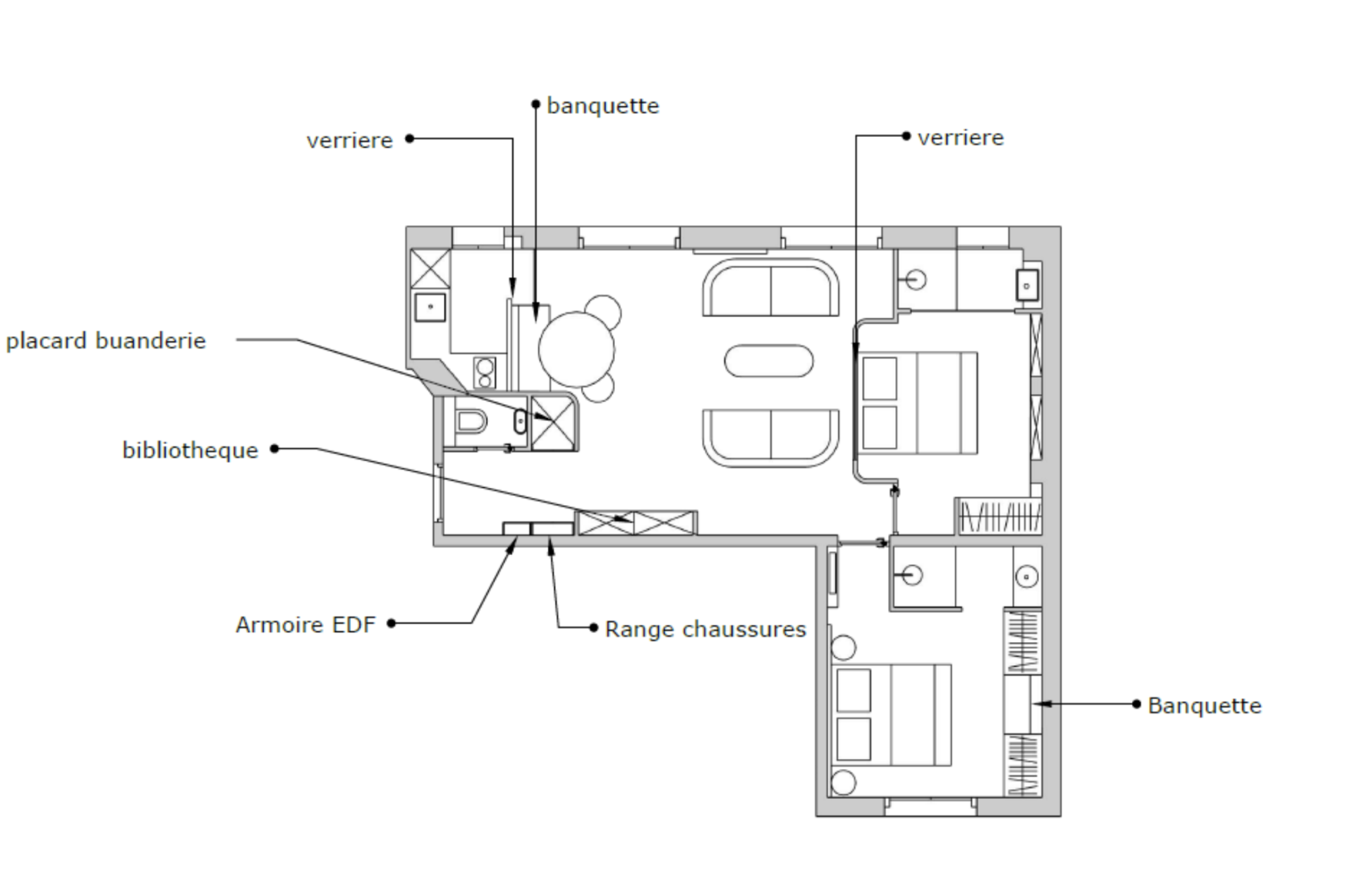
A VENDRE PARIS 6ÈME - CARREFOUR CROIX ROUGE / LUTÉTIA - BIEN DE PRESTIGE - Situé sur l'une des plus adresses du 6ème arrondissement avec les plus grandes maison de mode au pied de l'immeuble et le palace du Lutétia, au 4ème étage avec ascenseur d'un sublime immeuble art déco de 1930, nous vous proposons en exclusivité ce sublime bien d'une surface de 58m2 vendu entièrement rénové et décoré par architecte. Ce superbe appartement est composé d'une entrée avec wc, d'une très belle pièce à vivre avec espace salle à manger, d'une cuisine séparée par une superbe verrière, de deux chambres avec chacune sa salle de douche. Bien d'exception idéal comme pied à terre. A VISITER RAPIDEMENT ! TRÈS RARE SUR LE MARCHÉ ! Bien proposé par l'agence PARIS LUXURY HOMES. Visites et rensiegnements 7/7 Copropriété de 50 lots ().
Les photos du bien
Les diagnostics
| Bâtiment économe |
|---|
| |
| |
| 140 |
| |
| |
| |
| |
| Bâtiment énergivore |
| en kWh.an/m².an |
| Faible émission de GES* |
|---|
| |
| |
| 30 |
| |
| |
| |
| |
| Forte émission de GES* |
| * Gaz à effet de serre en KgeqCO2/m².an |