En vente Boutique 114 m2

Ville CUCQ
Code postal 62780
Type de bien Boutique
Surface 114 m2
Nombre de pièces
Prix 35 000,00 €
Informations sur l'annonceur
Annonce de professionnel
Agence NESTENN CUCQ-LE TOUQUET
Voir toutes les annonces
Adresse 325 Avenue de l'Europe Centre commercial Casamanche
62780 Cucq
Téléphone Fixe 0391890976
Portable 0671787455

Description

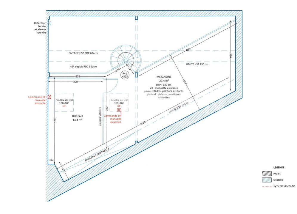
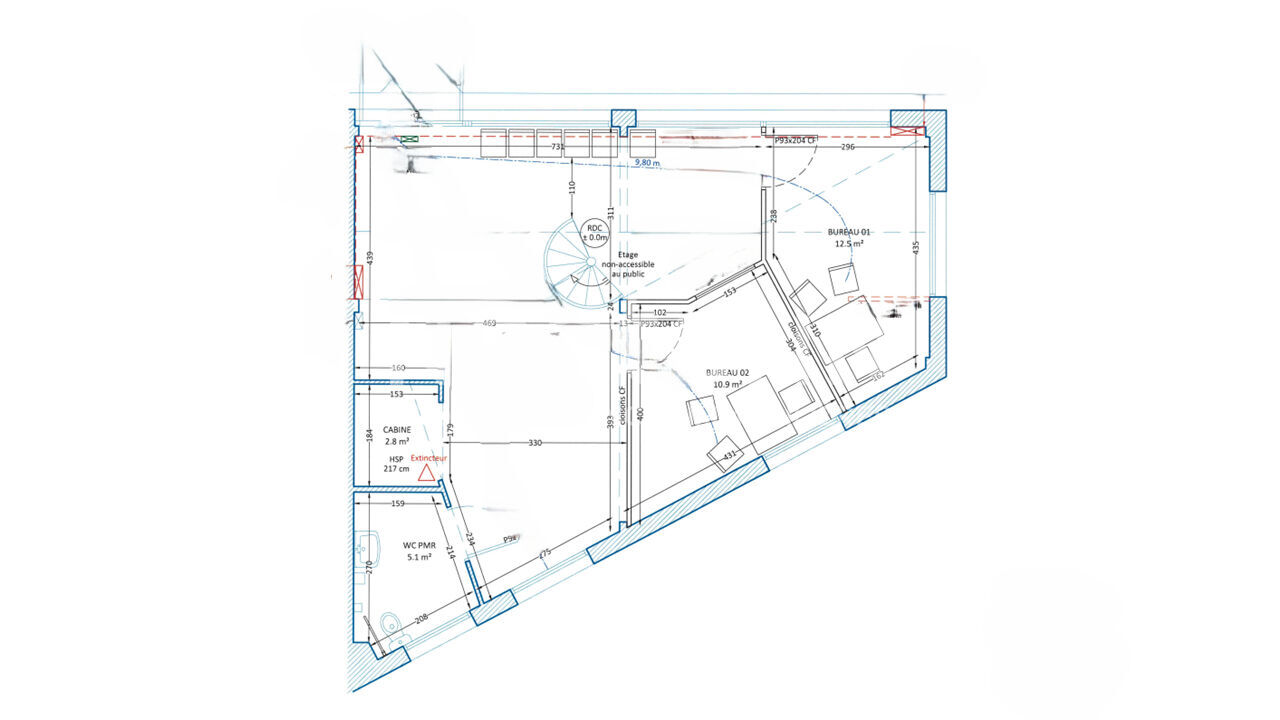
Situé à l'entrée du Touquet Paris-Plage, au sein du Centre Commercial Casamanche, ce local commercial de 115 m² bénéficie d'un emplacement premium sur un axe très passant, offrant une excellente visibilité et un fort potentiel commercial. Description du bien : Surface totale : 115 m² Rez-de-chaussée : 71 m² - Belle surface commerciale lumineuse - Deux bureaux - Hall / salle d'attente de 40 m² - Cabine et WC PMR Étage : 44m² - Bureau avec baie vitrée - Kitchenette équipée - Espace de stockage ou espace de bureaux en Open-Space Atouts : - Trois vitrines ( 7 mètres). - Emplacement stratégique à l'entrée du Touquet, sur un axe à fort trafic - Situé au coeur du centre commercial Casamanche, environnement dynamique - Plus de 50 places de stationnement à proximité immédiate - Espaces modulables et adaptés à de nombreuses activités : services, santé, bureaux, beauté, commerce de détail, etc. Points forts : - Accessibilité optimale - Visibilité exceptionnelle - Local en excellent état, prêt à l'emploi Droit au bail : 35 000 euros TTC Loyer mensuel : 1885.46 HT Pour plus d'informations ou pour organiser une visite, contactez Pascal CONTESSOTTO au 06.71.78.74.55 ou l'Agence Nestenn Cucq-le Touquet au 03 91 89 09 76.

Les photos du bien

Les diagnostics


DPE
Energie non communiquée
GES
GES non communiqué