En location Appartement 4 pièces 84 m2
| Ville | PARIS |
| Code postal | 75011 |
| Type de bien | Appartement |
| Surface | 84 m2 |
| Nombre de pièces | 4 pièces |
| Prix | 2 750,00 € |
| Informations sur l'annonceur | |
|---|---|
| Annonce de professionnel |
|
| Agence | QUOD, ASSOCIES Paris 17eme Voir toutes les annonces |
| Adresse | 109 rue Cardinet |
| 75017 PARIS 17EME | |
| Téléphone Fixe | 0140680484 |
| Portable | 0611447512 |
Description
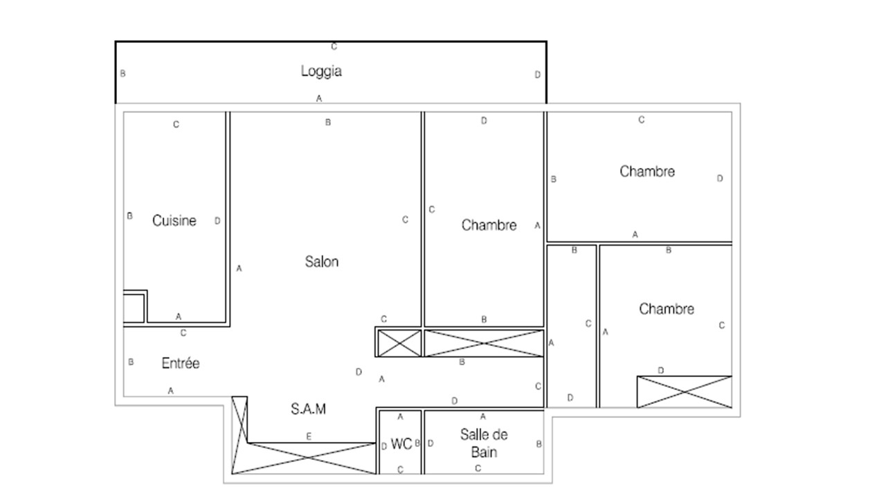
AVRON/NATION - A deux pas des transports et des commerces, au 3? étage avec ascenseur d'une résidence bien entretenue et sécurisée avec gardien et local à vélos, découvrez ce bel appartement meublé de 84 m², intelligemment agencés, entièrement rénové en 2024. Parfaitement au calme et baigné de lumière, il se compose d'une entrée, d'un séjour spacieux, d'une cuisine indépendante équipée, de trois chambres, d'une salle de bains avec WC, et de WC séparés. Un balcon filant offre une agréable vue sur le jardin arboré de la résidence. L'appartement bénéficie du double vitrage, d'un chauffage et eau chaude collectifs au gaz (DPE C). Disponible début novembre. Honoraires loi Alur : 15 euros / m2 Honoraires bail code civil : 15% du loyer annuel
Les photos du bien
Les diagnostics
| Bâtiment économe |
|---|
| |
| |
| 117 |
| |
| |
| |
| |
| Bâtiment énergivore |
| en kWh.an/m².an |
| Faible émission de GES* |
|---|
| |
| |
| |
| 24 |
| |
| |
| |
| Forte émission de GES* |
| * Gaz à effet de serre en KgeqCO2/m².an |