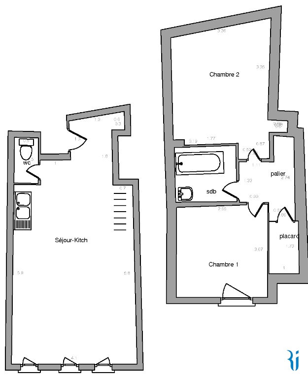
En vente Immeuble 112 m2
| Ville | DUCLAIR |
| Code postal | 76480 |
| Type de bien | Immeuble |
| Surface | 112 m2 |
| Nombre de pièces | |
| Prix | 193 000,00 € |
| Informations sur l'annonceur | |
|---|---|
| Annonce de professionnel |
|
| Agence | LEGAY SAUVAGE - Jeanne d'Arc Voir toutes les annonces |
| Adresse | 17 Rue Jeanne d'Arc |
| 76000 ROUEN | |
| Téléphone Fixe | 0235884820 |
| Portable | 0676865446 |
Description
Le cabinet SAUVAGE TRANSACTION vous propose cet immeuble de 3 lots en vente dans le centre ville de DUCLAIR. Idéal pour un investissement locatif, venez découvrir cet immeuble entièrement loué, avec un revenu locatif hors charge de 21 636 euros par an; l'immeuble est composé d'un fond de commerce de 32m² (loué 833 eurosHC + 20 euros de charges + foncier), un appartement T2 de 30m² (loué 348 eurosHC + 20 euros de charges), un appartement T3 en duplex de 50m² (loué 622 eurosHC + 15 euros de charges). PRECISIONS: faibles charges et foncier - très bonne rentabilité NOTRE INSTINCT IMMOBILIER VOUS LE CONSEILLE POUR : ses très faibles charges, sa très bonne rentabilité
Les photos du bien
Les diagnostics
DPE
| Bâtiment économe |
|---|
| |
| |
| |
| 219 |
| |
| |
| |
| Bâtiment énergivore |
| en kWh.an/m².an |
GES
| Faible émission de GES* |
|---|
| |
| 6 |
| |
| |
| |
| |
| |
| Forte émission de GES* |
| * Gaz à effet de serre en KgeqCO2/m².an |