En vente Appartement 5 pièces 91 m2
| Ville | VENISSIEUX |
| Code postal | 69200 |
| Type de bien | Appartement |
| Surface | 91 m2 |
| Nombre de pièces | 5 pièces |
| Prix | 355 000,00 € |
| Informations sur l'annonceur | |
|---|---|
| Annonce de professionnel |
|
| Agence | Cocooning Conseil Voir toutes les annonces |
| Adresse | 1 rue des Quatre Chapeaux |
| 69002 LYON | |
| Téléphone Fixe | 0668233535 |
| Portable | 0668233535 |
Description
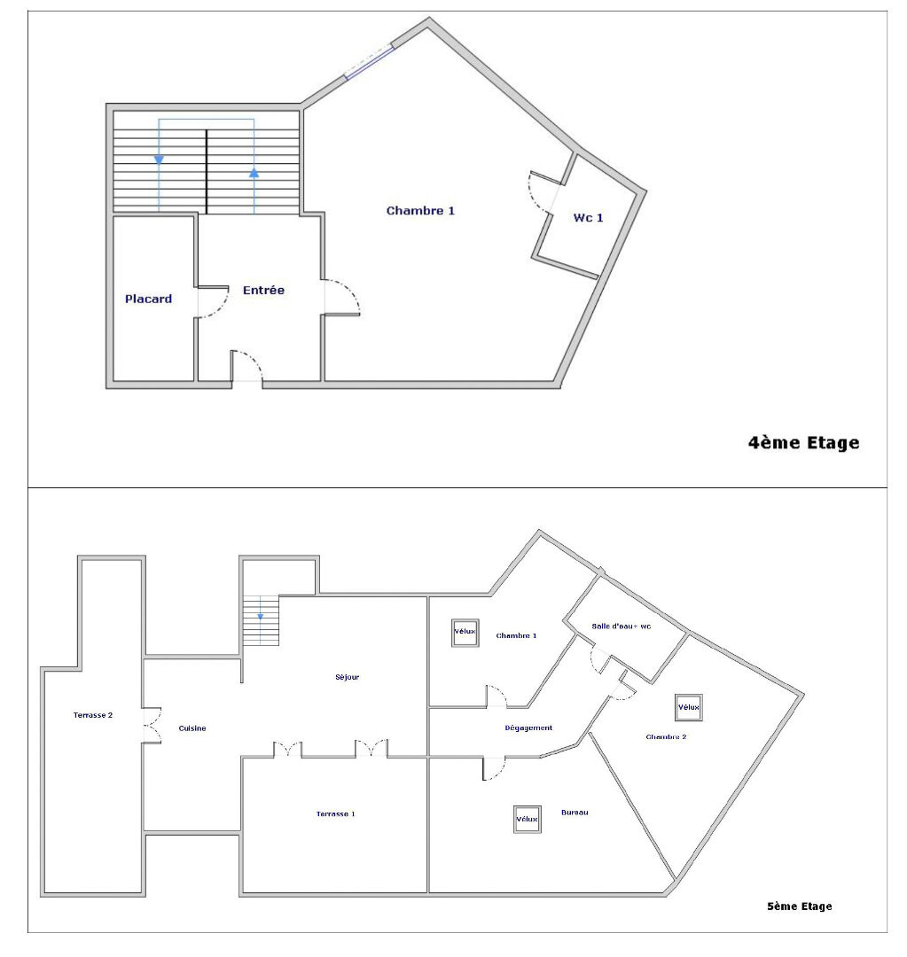
RARE TOIT-TERRASSE | PARILLY / JULES GUESDE | T5 ; 3 CHAMBRES ; 121 m² | 2 TERRASSES | GARAGES DOUBLE | VUE PANORAMIQUE My Cocoon, l'agence aux honoraires fixes à 2% vous présente en exclusivité ce bien d'exception situé sur la commune de Vénissieux : Comme une maison sur le toit, ce duplex est situé au dernier étage d'une résidence récente (construction 2011) et bien entretenue. Ce bien de 91m2 (Loi Carrez), en excellent état, séduit par ses volumes (121m2 au sol), sa luminosité et sa vue dégagée. Un véritable "cocon suspendu". A l'extérieur, cet appartement possède 2 grandes terrasses de 25m2 environ chacune, offrant un cadre idéal pour les repas, moments de détente, jardinage ou soirées d'été... Le tout avec une vue dégagée sur la ville et les monts du Lyonnais. Sa pièce de vie généreuse (35m2) se compose d'un séjour et d'une cuisine moderne entièrement équipée. La partie nuit propose 3 chambres, dont une au premier niveau avec sa salle d'eau. Vous trouverez également un coin bureau/chambre, un dressing, une salle de bains, de nombreux rangements et 2 WC. Prestations et atouts : - Exposition : SUD / OUEST - Excellente luminosité et atmosphère chaleureuse - Vue dégagée depuis toutes les pièces - Agencement familiale et nombreux rangements - Possible de créer une suite parentale - Climatisation réversible - Pergola sur une terrasse - Double vitrage, bon DPE - Chauffage individuel électrique - Proximité avec le Parc Parilly, commerces et transports en commun - Métro D : 4 min à pied - Tramway T4 : 5min à pied - Gare Part Dieu : 23 min en métro - Présence d'un local à vélo Un garage double en sous-sol complète ce bien (en option). ---------- POUR VISITER : Sébastien THEODOSE 006 37 09 19 46 ---------- Prix : 355 000 euros Honoraires Agence inclus 2% Biens en copropriété : 28 Lots d'habitation Pas de procédure en cours Charges annuelles ALUR : 2 100 euros Taxe foncière 2024 : 1 667 euros DPE : D / GES : B. Contact : Sébastien THEODOSE : 00637091946 Agent commercial RSAC 832 812 267 MY COCOON : 16 rue Franklin, 69002 LYON. www.mycocoon-lyon.com Copropriété de 61 lots - dont 28 lots habitation. (Pas de procédure en cours). Charges annuelles : 2100 euros. Sébastien THEODOSE (EI) Agent Commercial - Numéro RSAC : 832812267 - Lyon.
Les photos du bien
Les diagnostics
| Bâtiment économe |
|---|
| |
| |
| |
| 215 |
| |
| |
| |
| Bâtiment énergivore |
| en kWh.an/m².an |
| Faible émission de GES* |
|---|
| 6 |
| |
| |
| |
| |
| |
| |
| Forte émission de GES* |
| * Gaz à effet de serre en KgeqCO2/m².an |