En location Appartement 3 pièces 58 m2
| Ville | Annecy |
| Code postal | 74960 |
| Type de bien | Appartement |
| Surface | 58 m2 |
| Nombre de pièces | 3 pièces |
| Prix | 1 120,00 € |
| Informations sur l'annonceur | |
|---|---|
| Annonce de professionnel |
|
| Agence | GESTY Lyon Voir toutes les annonces |
| Adresse | |
| 69004 LYON |
Description
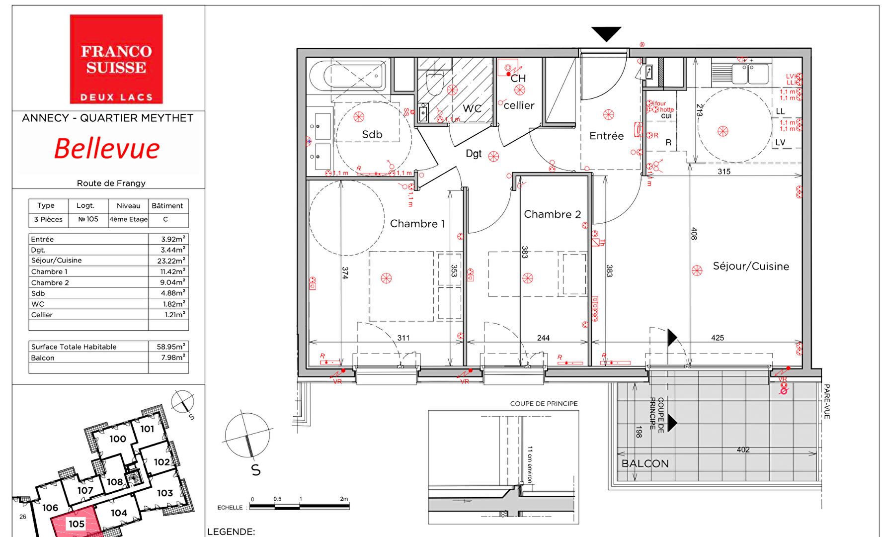
Dans un immeuble neuf de 2024 du constructeur FRANCON SUISSE, au 4ème étage avec ascenseur, cet appartement T3 meublé de 58,95 m² comprend : - un grand salon qui donne sur un - une cuisine ouverte sur le séjour, avec un balcon de 8 m². - 2 chambres avec de nombreux rangements, - 1 salle de bain avec meuble vasque - WC séparés avec lave linge L'appartement dispose également de 2 places de parking Vue magnifique sur les montagnes. Chauffage individuel au gaz
Les photos du bien
Les diagnostics
DPE
| Bâtiment économe |
|---|
| |
| 86 |
| |
| |
| |
| |
| |
| Bâtiment énergivore |
| en kWh.an/m².an |
GES
| Faible émission de GES* |
|---|
| |
| |
| 17 |
| |
| |
| |
| |
| Forte émission de GES* |
| * Gaz à effet de serre en KgeqCO2/m².an |