En vente Appartement 3 pièces 67 m2

Ville Lyon
Code postal 69001
Type de bien Appartement
Surface 67 m2
Nombre de pièces 3 pièces
Prix 283 500,00 €
Informations sur l'annonceur
Annonce de professionnel
Agence ArlimPrestige Croix-Rousse/Caluire
Voir toutes les annonces
Adresse
01110 Hauteville Lompnes
Négociateur AGENCE ARLIM CROIX ROUSSE/ CALUIRE
Téléphone 04.72.45.55.43

Description

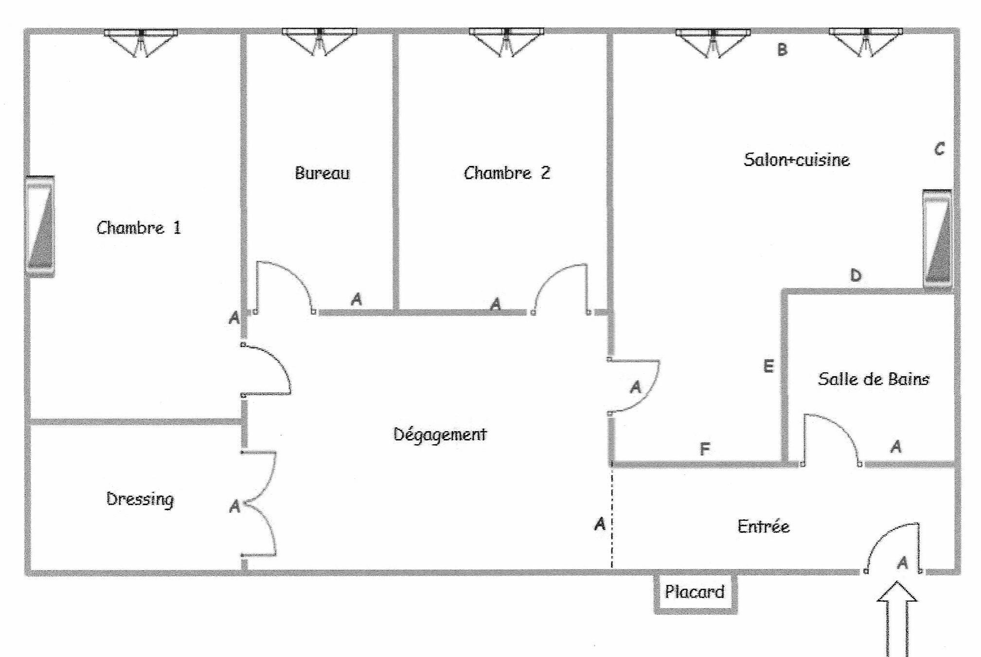
RARE. LYON 1. Haut des pentes, à 300 mètres du métro et de la place de la Croix-Rousse. Dans un immeuble de type Canuts, en étage élevé avec ascenseur, doté d'une très belle vue dégagée et sans vis à vis. Venez découvrir cet appartement de 67 m² carrez, lumineux, éclairé par 5 fenêtres, entièrement à rénover et à réaménager. Il se compose actuellement, d'une entrée avec placard, d'une salle de bains avec baignoire et wc, d'un dégagement, d'une cuisine fermée, d'une alcôve, d'une chambre, d'une chambre d'enfant et d'un bureau. Tout le cachet de l'ancien peut être retrouvé : parquet bois, plafond à la Française, belle hauteur sous plafond de 3,80 m. Les gros plus : deux caves, un grenier et au sein de la copropriété : un local à vélos et un jardin commun d'environ 50 m². 27 lots principaux. Quote part de charges annuelles 875 euros plus 400 euros de fond travaux. DPE Vierge, non applicable. Honoraires charge vendeur. Pas de procédure en cours. Les informations sur les risques auxquels ce bien est exposé sont disponibles sur le site Géorisques : www.georisques.gouv.fr. Agence ARLIM PRESTIGE Croix-Rousse / Caluire Sandrine OLIVIER 06 15 13 81 54 ou 04 72 45 55 43.Informations LOI ALUR : Soumis au régime de copropriété.Nombre de lots : 157. Quote part annuelle(moyenne) : 875 euros.Honoraires charge vendeur. (gedeon_40266_32234787)

Les photos du bien

Les diagnostics


DPE
Energie non communiquée
GES
GES non communiqué