En vente Appartement 2 pièces 52 m2
| Ville | AVRANCHES |
| Code postal | 50300 |
| Type de bien | Appartement |
| Surface | 52 m2 |
| Nombre de pièces | 2 pièces |
| Prix | 144 500,00 € |
| Informations sur l'annonceur | |
|---|---|
| Annonce de professionnel |
|
| Agence |
Heudes-Laine Immobilier - HEUDES-LAINE IMMOBILIER
Voir toutes les annonces |
| Adresse | 3 rue du général de Gaulle BP 325 |
| 50303 AVRANCHES CEDEX | |
| Téléphone Fixe | +33233580107 |
| Portable | +336078271 |
Description
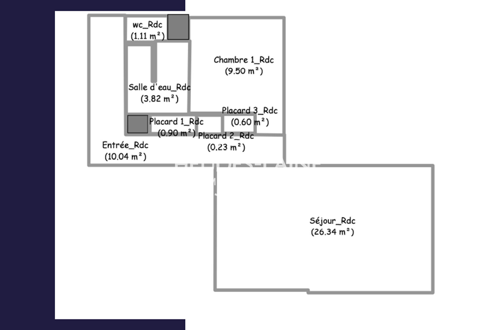
EXCLUSIVITÉ ! Situé en plein coeur d'Avranches, au rez-de-chaussée d'une résidence calme et entretenue, cet appartement de 52 m² offre un cadre de vie agréable grâce à ses beaux volumes et à son charme unique. Il se compose de : Un salon-séjour lumineux avec toit cathédrale et cuisine ouverte, Une chambre avec salle d'eau attenante, Un WC séparé, Un couloir avec placard intégré. Vous disposerez également d'une place de parking en sous-sol. Chauffage électrique individuel. Idéal en résidence principale, pied-à-terre ou investissement locatif. Commodités accessibles à pied : commerces, services, restaurants, marché, transports et centre-ville à 1 minute seulement. Libre de toute occupation en janvier 2026. Pour plus d'informations ou pour organiser une visite, contactez-nous dès maintenant ! Les informations sur les risques auxquels ce bien est exposé sont disponibles sur le site Géorisques : www.georisques.gouv.fr Copropriété de 59 lots - dont 17 lots habitation. (Pas de procédure en cours). Charges annuelles : 800 euros.
Les photos du bien
Les diagnostics
| Bâtiment économe |
|---|
| |
| |
| |
| |
| 264 |
| |
| |
| Bâtiment énergivore |
| en kWh.an/m².an |
| Faible émission de GES* |
|---|
| |
| 8 |
| |
| |
| |
| |
| |
| Forte émission de GES* |
| * Gaz à effet de serre en KgeqCO2/m².an |