En vente Appartement 4 pièces 74 m2
| Ville | TOULOUSE |
| Code postal | 31100 |
| Type de bien | Appartement |
| Surface | 74 m2 |
| Nombre de pièces | 4 pièces |
| Prix | 172 000,00 € |
| Informations sur l'annonceur | |
|---|---|
| Annonce de professionnel |
|
| Agence | IMMO de France - Toulouse - Balma Voir toutes les annonces |
| Adresse | |
| 31130 Balma | |
| Téléphone Fixe | 0561730364 |
Description
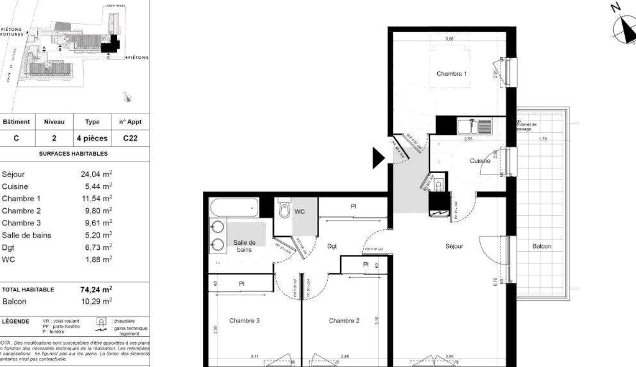
Appartement T4 avec terrasse proche Oncopole. Votre agence Immo de France a le plaisir de vous présenter à la vente et libre d'occupation cet appartement de type 4 de 74.27m² situé au 1er étage d'une résidence sécurisée, SANS VIS A VIS. Il se compose d'une entrée, d'un séjour de 24m² donnant sur un balcon de 9m², d'une cuisine séparée aménagée et équipée, de trois chambres dont deux avec placard, d'une salle de bains avec wc séparés. Vous disposerez également d'une place de parking privative en sous-sol. La résidence se situe à proximité des commerces et de l'ONCOPOLE, BUS L4 au pied de la résidence. VENDU LIBRE. (7.00 % honoraires TTC à la charge de l'acquéreur.) Copropriété de 47 lots - dont 47 lots habitation. (Pas de procédure en cours). Charges annuelles : 1046 euros.
Les photos du bien
Les diagnostics
| Bâtiment économe |
|---|
| |
| 75 |
| |
| |
| |
| |
| |
| Bâtiment énergivore |
| en kWh.an/m².an |
| Faible émission de GES* |
|---|
| |
| |
| 14 |
| |
| |
| |
| |
| Forte émission de GES* |
| * Gaz à effet de serre en KgeqCO2/m².an |