En location Appartement 2 pièces 41 m2
| Ville | Toulouse |
| Code postal | 31000 |
| Type de bien | Appartement |
| Surface | 41 m2 |
| Nombre de pièces | 2 pièces |
| Prix | 900,00 € |
| Informations sur l'annonceur | |
|---|---|
| Annonce de professionnel |
|
| Agence | Benoît Lannes Immobilier Voir toutes les annonces |
| Adresse | |
| 31150 Lespinasse | |
| Négociateur | BENOÎT LANNES IMMOBILIER |
| Téléphone | 06-31-63-48-51 |
Description
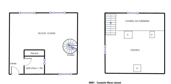
Les Châlets - Appartement T2 de 41,87 m² en location meublée.Situé en plein coeur des Châlets nous vous proposons à la location ce T2 de 41,87 m² en loi Carrez mais de 67,66 m² au sol en location meublée.L'appartement vous offre une pièce de vie de 21,61 m² avec sa cuisine aménagée et équipée de 6,25 m². Sur le même niveau vous avez une salle d'eau avec wc.Le coin nuit à l'étage offre une chambre de 8,50 m² mais une surface au sol de 23,62 m² avec un grand espace de rangement.Vous êtes proches des commerces, à 5 mn des lignes 29,45, 70, L1, L14, à 10 mn du métro Compans Caffarelli ou Jeanne d'Arc..Composition de l'appartement :Pièce de vie 21,61 m² avec cuisine ouverte de 6,25 m².Chambre 8,50 m² mais 23,62 m² au sol avec grand rangement.SDE avec wc 3,08 m².Côté prestations :Entièrement aménagé et équipé.Appartement en excellent état.Fenêtres pvc double vitrage.Informations pratiques :Classement énergétique en C.Loyer HC 850EUR.Charges : 50EUR.Loyer CC : 900EUR.Caution : 1700EUR.Honoraires de location : 544,31EUR.Disponible à partir du 22 décembre.Location 12 mois non renouvelable.Pour plus de renseignements, veuillez contacter l'agence.Cette annonce vous est proposée par Dedieu Sabine - - NoRSAC : 898566120, Enregistré au Greffe du tribunal de commerce de TOULOUSE.Informations LOI ALUR : Charges : 50 ¤ /mois.Règlement des charges : provisionnel.Honoraires locataire : 544 ¤ TTC.Dont honoraires état des lieux : 126 ¤.Surface (arrondie) : 41 m².Appartement meublé. (gedeon_90737_32280250)
Les photos du bien
Les diagnostics
| Bâtiment économe |
|---|
| |
| |
| |
| 235 |
| |
| |
| |
| Bâtiment énergivore |
| en kWh.an/m².an |
| Faible émission de GES* |
|---|
| |
| |
| |
| 47 |
| |
| |
| |
| Forte émission de GES* |
| * Gaz à effet de serre en KgeqCO2/m².an |