En location Appartement 1 pièce 32 m2

Ville GRANVILLE
Code postal 50400
Type de bien Appartement
Surface 32 m2
Nombre de pièces 1 pièce
Prix 540,00 €
Informations sur l'annonceur
Annonce de professionnel
Agence Agence Pozzo-immobilier - Pozzo immobilier Granville Location
Voir toutes les annonces
Adresse 43 rue Paul Poirier
50400 Granville
Téléphone Fixe 0233909797

Description

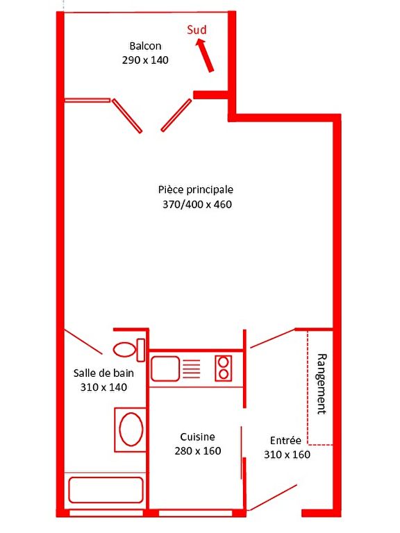
Pozzo Immobilier vous propose un appartement T1 de 32.35 m² situé au 4ème étage d'une résidence avec ascenseur dans le quartier Saint Paul de Granville. Il comprend une entrée avec placards, une cuisine aménagée et équipée, une pièce à vivre avec balcon offrant une vue mer et une salle de bain avec WC. Chauffage collectif au gaz de ville. Compteurs d'eau et d'électricité individuels.

Les photos du bien

Les diagnostics


DPE
Energie non communiquée
GES
GES non communiqué