En vente Immeuble 9 pièces 271 m2

Ville Aix-en-Provence
Code postal 13080
Type de bien Immeuble
Surface 271 m2
Nombre de pièces 9 pièces
Prix 1 450 000,00 €
Informations sur l'annonceur
Annonce de professionnel
Agence Robin GABASTON
Voir toutes les annonces
Adresse
13006 Marseille 6ème
Téléphone Fixe 33668538938

Description

LE CORDELIERS
I IMMEUBLE I 13080 Aix-en-provence LE CORDELIERS
I IMMEUBLE I 13080 Aix-en-provence

TRAVAUX DE FINITIONS EN COURS - IMMEUBLE LIVRÉ POUR DÉBUT 2026

En plein c?ur du centre-ville d'Aix-en-Provence, parallèle au cours Sextius, nous vous proposons un immeuble de caractère récemment rénové, traversant d'Est/Ouest. Il séduit par sa luminosité et la qualité de sa rénovation.

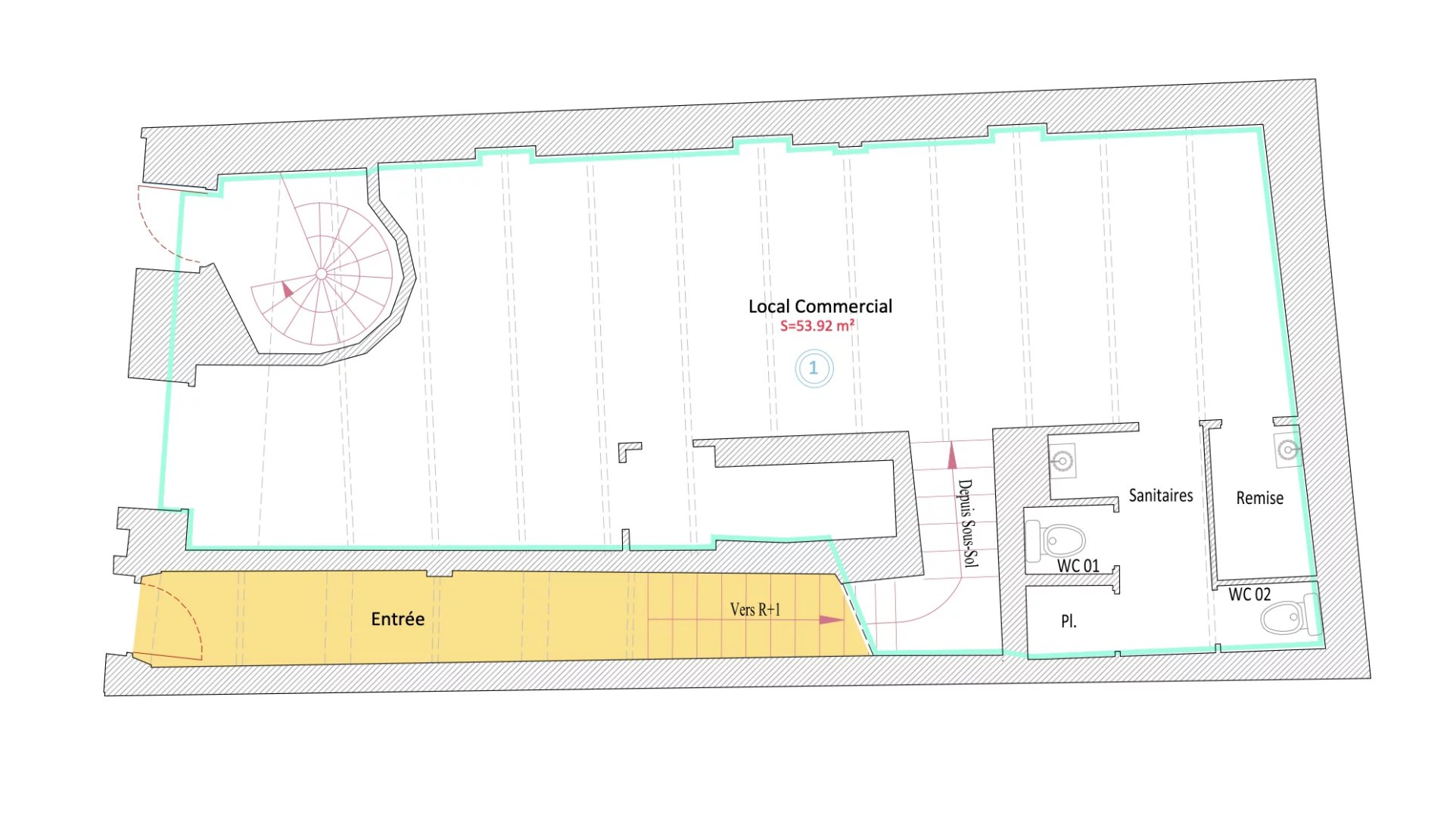
Il se compose :
- RDC : LOCAL sur 2 niveaux
- 1er étage : Appartement T3 de 72m2
- 2ème étage : Appartement T4 de 87m2

L'immeuble a bénéficié d'une rénovation complète, incluant la façade, la cage d'escalier ainsi qu'une révision de la toiture.Rénové avec des matériaux de qualité, ce bien allie confort moderne et charme du centre historique.

Idéalement situé à proximité immédiate de toutes les commodités, commerces et transports, cet immeuble représente une belle opportunité.

N'hésitez pas à nous contacter pour plus d'informations et/ou visiter.

RAPHAEL WITTMAR : 07 86 97 46 96
ADC 1310 2025 000 000 176
RC : AU332783

« Les informations sur les risques auxquels ce bien est exposé sont disponibles sur le site Géorisques : www.georisques.gouv.fr ».

Bien soumis au régime de la copropriété.

Nombre de lots : COPRO EN COURS ( 3 )
Procédure en cours : Aucune
Charges mensuelles : 350euros/mois ( Parties communes , eau froide ) ( Estimatif )
Taxe foncière : 3080euros /an ( Estimatif )
Réalisation du diagnostic énergétique : EN COURS
Surface : 271 m2
Montant moyen estimé des dépenses annuelles d'énergie pour un usage standard basés sur les prix de l'énergie : entre EN COURS euros et EN COURS euros par an
Honoraires à la charge du vendeur

Les photos du bien

Les diagnostics


DPE
Energie non communiquée
GES
GES non communiqué