Annonces en ligne
AGV GARELLI IMMOBILIER vous propose ce magnifique appartement neuf de 2 pièces au centre-ville du Cap d'Ail, village surplombant la mer et à seulement 9 minutes de Monaco. Cette nouvelle résidence en R+4, unique et prestigieuse est au c½ur du cen
Magnifique T2 de 26 m², situé en rez-de-chaussée d'une résidence moderne. Ce bien bénéficie d'un agencement optimisé, offrant un espace de vie spacieux et fonctionnel. L'intérieur, soigneusement décoré, allie confort et modernité avec des
T3 RÉCENT AU 4EME ET DERNIER ÉTAGE AVEC ASCENSEUR - TERRASSE SUD - GARAGE PRIVATIF SOUS LA RÉSIDENCE :AGV GARELLI immobilier vous propose en exclusivité d'acquérir un charmant T3 de 56 m² exposition plein sud dans une résidence récente de Tou
LOCATION BUREAUX :LOCAL COMMERCIAL OU PROFESSIONNEL - TOULON CENTRE - PLACE D'ARMESLocal de 88 m² sur 2 niveaux situé en centre-ville de Toulon, dans la Zone Franche Urbaine se composant, d'un premier bureau de 40 m² en rdc avec grande devanture,
Résidence à Toulon - AGV ImmobilierAGV Immobilier a le plaisir de vous présenter, des appartements qui va bientôt voir le jour à Toulon.Cette résidence moderne et de standing, qui se compose de trois niveaux, offrira des appartements allant du
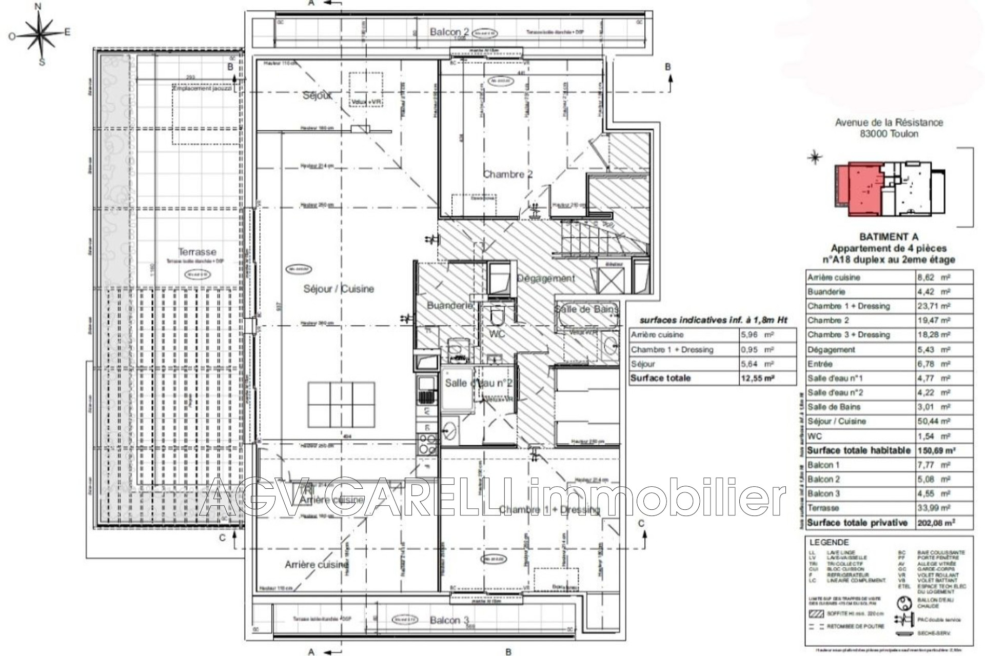
À Vendre Duplex T4 de Haut Standing Toulon Cap BrunSituée avenue de la Résistance à Toulon, au sein d'une résidence de grand standing, sécurisée et nichée au calme sous la pinède, cette résidence offre un cadre de vie exceptionnel. Elle b
AGV GARELLI IMMOBILIER vous propose de louer ce bel appartement de type T2, d'une superficie de 50 m², idéalement situé à Toulon dans le quartier du CAP BRUN.Situé au 1er étage d'un petit immeuble bien entretenu, cet appartement est lumineux gr
AGV IMMOBILIER vous propose de venir découvrir en exclusivité ce charmant appartement de type 2 pièces, idéalement situé dans un quartier de Toulon.D'une surface de 26,70 m², ce bien se situe au 1er étage d'un immeuble de 2 étages. Son exposi
MAISON A TOULON - CAP BRUN :Coup de c½ur assuré pour cette maison aux dernières normes de plus de 90 m², avec un jardin de 73m² dans un espace boisé classé, dans une résidence sécurisée comprenant des appartements et des maisons situés à
APPARTEMENT A TOULON - CAP BRUN :Coup de c½ur assuré pour cet appartement de type 2 aux dernières normes de 42 m², avec un beau balcon de 16 m², dans une résidence sécurisée comprenant des appartements et des maisons situés à Toulon, dans l
Charmant studio de 22 m², idéalement situé en rez-de-chaussée dans une résidence moderne. Ce bien bénéficie d'un agencement optimal, offrant un espace de vie lumineux et fonctionnel. L'intérieur a été conçu avec soin, mettant en valeur des
Magnifique T3 de 40 m², situé en rez-de-chaussée dans une résidence moderne et bien pensée. Ce bien bénéficie d'un agencement optimal, offrant des espaces lumineux et fonctionnels. L'intérieur, élégant et contemporain, utilise des matériau
TOULON OUEST PROCHE CENTRE - T3 RÉCENT AVEC TERRASSE ET GARAGE - AU CALME !!IDÉAL INVESTISSEUR ET PLACEMENT IMMOBILIER AVEC IMPORTANTS REVENUS LOCATIFS - FORTE RENTABILITÉ :Dans résidence récente, en rez-de-chaussée surélevé, appartement T3 d
Résidence à Toulon - AGV ImmobilierAGV Immobilier a le plaisir de vous présenter, de nouveaux appartements qui vont bientôt voir le jour à Toulon. Cette résidence moderne et de standing, qui se compose de trois niveaux, offrira des appartements
AGV GARELLI IMMOBILIER vous propose de louer à TOULON 3 chambres indépendantes en collocation dans cet appartement de 100m² refait entièrement du sol au plafond vue mer sur la rade de TOULON. 3 chambres sont disponibles en tout.*Au 8ème étage s
LOCAL COMMERCIAL OU PROFESSIONNEL EN ZONE FRANCHE :Nous vous proposons d'acquérir en Zone Franche à Toulon, place d'Armes, ce beau local de 88 m² sur 2 niveaux, dont un en rez-de-chaussée avec grande devanture.Pour toute question ou demande de vi
MAISON A TOULON - CAP BRUN :Coup de c½ur assuré pour cette maison aux dernières normes de plus de 90 m², avec un magnifique jardin de 183 m², le plus grand jardin privatif de la résidence dans un espace boisé classé, dans une résidence sécu
Une exclusivité AGV Garelli immobilier :MAGNIFIQUE T4 DE 102 M² - TERRASSE SUR LE TOIT DE 75 M² - CAVE & PARKINGSCet appartement exceptionnel de type 4 pièces de plus de 100 m² situé à Toulon, Cap Brun, occupe une position privilégiée au deu
MAISON A TOULON - CAP BRUN :Coup de c½ur assuré pour cette maison aux dernières normes de plus de 90 m², avec un jardin de 75m² dans un espace boisé classé, dans une résidence sécurisée comprenant des appartements et des maisons situés à
APPARTEMENT A TOULON - CAP BRUN :Coup de c½ur assuré pour cet appartement de type 3 aux dernières normes de 63 m², avec un beau balcon de 10 m², dans une résidence sécurisée comprenant des appartements et des maisons situés à Toulon, dans l