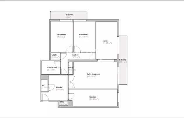
Paris 13ème - 630 000 €
PARIS XIIIe - Secteur Gobelins/ Arago, proche 5e arrondissement, à quelques pas du métro Gobelins (ligne 7), au pied des commerces et à seulement 10 minutes à pied du Jardin des Plantes, découvrez ce 3 pièces traversant de 51,80 m² (50,02 m²