Annonces en ligne
Découvrez cette maison familiale située à AMAREINS, sur la commune de Francheleins, offrant une superficie de 200m². Avec ses sept chambres et neuf pièces, elle est idéale pour accueillir une grande famille. Les fenêtres en PVC à double vitra
En plein coeur du village, je vous invite à découvrir cet appartement en duplex de 112,59 m² avec terrasse situé au calme et à deux pas des commerces. Erigé au rez-de-chaussée et au 1er étage d'une petite copropriété de 3 lots, il comporte
MONTMERLE SUR SAONE, sur les hauteurs secteurs des Minimes. Maison trois chambres, une mezzanine, un sous-sol complet garage, buanderie, cave. Terrain non clos avec une piscine. Maison d'environ 143m² sur un terrain de 1092m². Menuiseries double vi
Je vous propose une surface de bureau exceptionnelle au cœur du village de Montmerle avec parking. Idéal pour des activités tertiaires, de bien-être ou pour des professionnels de la santé, ce local bénéficie d'un accès handicapé. * 2 acc
MOGNENEINS, maison de 160m² sur un terrain clos et arboré de 1859m². Idéal pour une famille nombre où famille recomposée. La maison avec dépendances atelier, une belle entrée charpente traditionnelle, cuisine, salon salle à manger, un bureau
SAINT DIDIER SUR CHALARONNE secteur Valenciennes, libre constructeur, au calme, non viabilisé. En zone Uh 30% coefficient soit 166m² de construction pour un terrain de 555m². Fanny BLANCAHRD (gérante) 06.82.26.12.50. Agence du VALDOR Montmerle.
Découvrez cette charmante maison d'environ 190 m² habitables entièrement rénovée avec goût, idéalement située dans le secteur calme et recherché de Messimy-sur-Saône. Baignée de lumière grâce à son exposition plein sud, elle offre un
-Exclusivité Valdor- Belleville en Beaujolais Vous recherchez une maison récente (2017) sans travaux a prévoir et en prime de plain pied alors cette maison est faite pour vous ! A proximité des axes autoroutiers, venez découvrir cette mais
Situé dans un cadre idyllique en bord de Saône, ce restaurant bénéficie d’un emplacement privilégié, offrant à sa clientèle une vue exceptionnelle et un environnement paisible, très recherché aux beaux jours. L’établissement dispose
LANCIE, terrain en zone Uia 9702m² extension d'activitée existante (TP , vigneronne, hôtellerie). En zone Ab 5013m². Eau & électricité en bord de route, tout à l'égout en bas au bout du terrain. Zone urbaine à vocation économique, artisanal
Spécialement conçu pour les investisseurs! Projection possible avec trois lots. Tout d'abord, un local commercial de 248 m² avec cour privative, jardin et belle partie couverte pour les soirée d'été. Ensuite, un appartement attenant pouvan
Je vous invite à découvrir ce bel appartement en attique, idéalement situé en plein cœur du centre de Montmerle. Occupant le 1er et dernier étage d’une petite copropriété, ce T4 d’environ 100 m² séduit par ses volumes et sa magnifiqu
Je vous invite à découvrir ce bien en duplex entièrement rénové en 2023 qui dispose en rez-de-chaussée d'un beau séjour avec cuisine ouverte équipée et aménagée avec parquet et cheminée, un espace toilettes et buanderie, le tout ouvrant s
Dans le charmant village de LURCY, à deux pas de Montmerle et de ses commerces, je vous invite à découvrir cette agréable maison de 175 m² habitables. Cette maison récente (2004) située hors lotissement comprend 5 chambres dont 2 de plain pie
Montmerle-sur-Saône, à deux pas du centre, venez découvrir cette maison individuelle récente, construite en 2004 et entièrement rénovée en 2021, implantée sur une parcelle plate, close et parfaitement entretenue. Elle s’ouvre sur une entrÃ
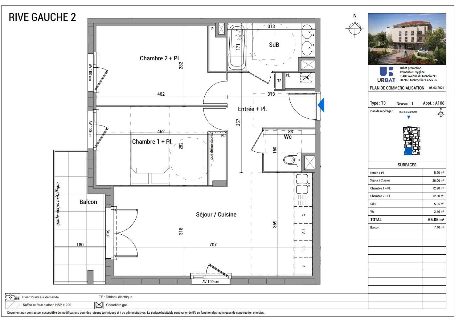
JASSANS RIOTTIER, T3 au premier exposition sud de 65.050m² avec un balcon de 7.40m², une place de stationnement privée en sous-sol. Livraison décembre 2026, éligible à la Pinel. Agence du VALDOR MONTMERLE 04.37.55.71.79.
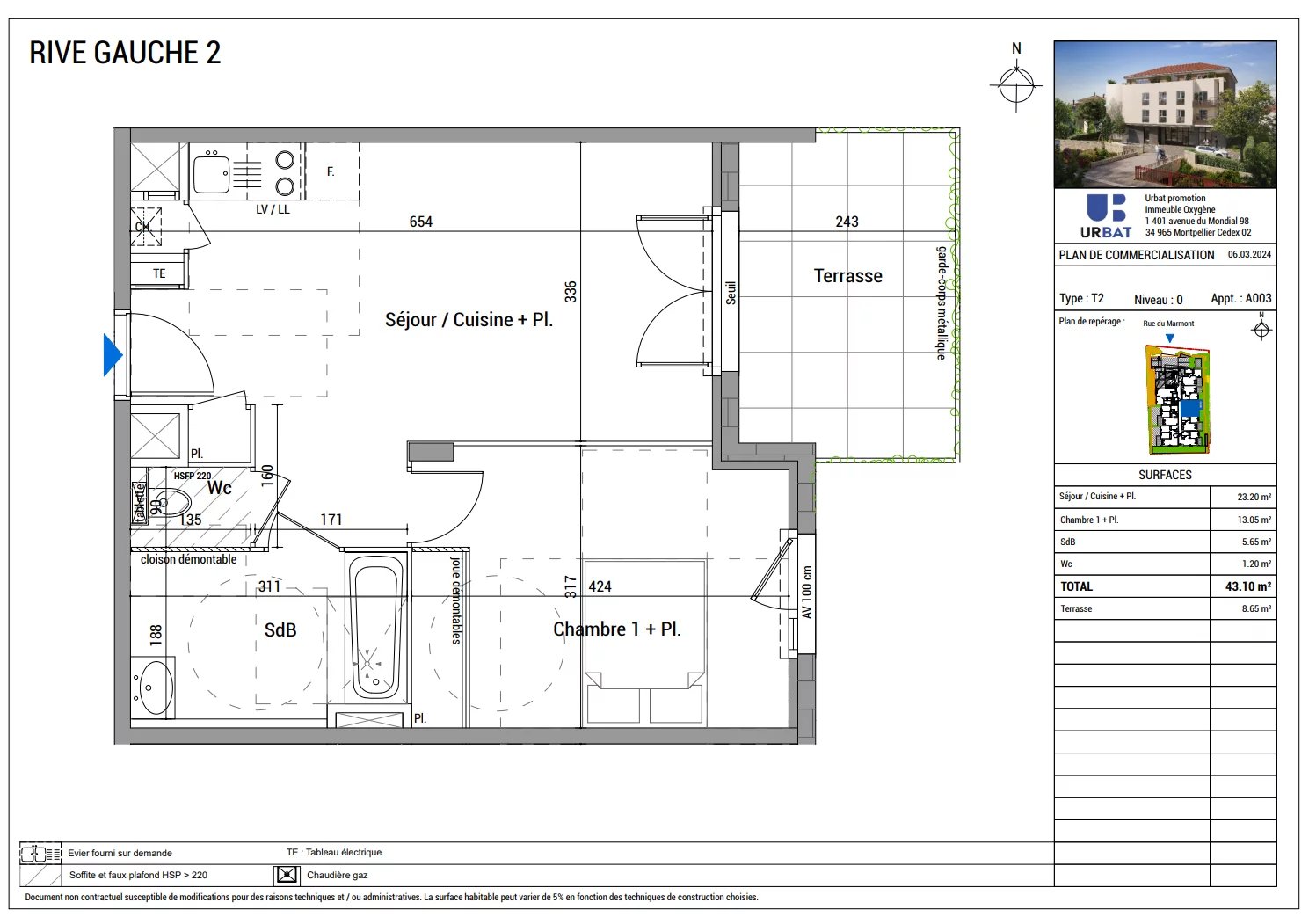
JASSANS RIOTTIER, T2 en rez de chaussée 43.10m² avec une terrasse de 8.65m², une place de stationnement privée. Livraison décembre 2026, éligible à la Pinel. Agence du VALDOR MONTMERLE 04.37.55.71.79.
Découvrez ce charmant terrain à bâtir d’environ 485 m², idéalement situé dans un environnement calme et verdoyant, à proximité immédiate du centre du village de Mogneneins. Non viabilisé et libre constructeur, il offre une opportunité un
Située dans le charmant village de Mogneneins, au calme, je vous invite à découvrir cette agréable maison de 110 m² à rénover. Implantée dans un environnement paisible, sur un terrain de 729 m² exposé plein sud, elle offre de beaux volumes
Au coeur de Belleville et à deux pas du centre, je vous propose de découvrir en exclusivité ce joli terrain à bâtir de 319 m² (jouissance de 171 m² supplémentaires). Parcelle hors lotissement et libre constructeur avec accès indépendant, a