En vente Terrain 502 m2

Ville BOURGVALLEES
Code postal 50750
Type de bien Terrain
Surface 502 m2
Nombre de pièces
Prix 35 000,00 €
Informations sur l'annonceur
Annonce de professionnel
Agence CABINET FOLLIOT - Cabinet FOLLIOT
Voir toutes les annonces
Adresse 577 route de Villedieu
50400 YQUELON
Téléphone Fixe 0261900515
Portable

Description

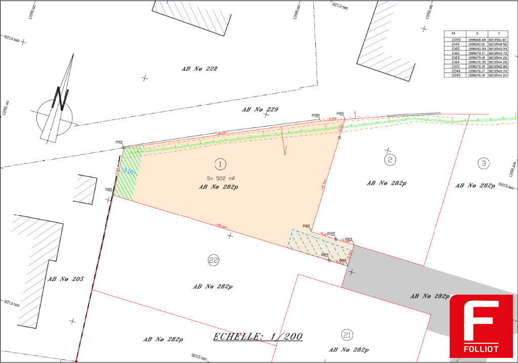
Le cabinet Folliot vous propose sur la Commune de Saint Samson de Bonfossé un terrain viabilisé de 502m² comprenant l'eau - l électricité - le téléphone et le branchement tout à l'égout. Surface Constructible 200m² de plancher Le terrain est à deux pas de tous commerces avec un accès piéton . La Voirie est rétrocédée à la Commune L'accès du lotissement se fait par la Rue Tellier 50750 BOURGVALLEES Frais de Notaire Réduit Les informations sur les risques auxquels ce bien est exposé sont disponibles sur le site Géorisques : www. georisques. gouv. fr Pour toutes questions supplémentaires merci de contacter: M. LEGOUPIL 06.21.28.33.03. Pierre Emmanuel LEGOUPIL (EI) Agent Commercial - Numéro RSAC : 751 823 071 - COUTANCES.

Les photos du bien

Les diagnostics


DPE
Energie non communiquée
GES
GES non communiqué