Cette annonce n'est plus en ligne !

Voici une sélection d'annonces susceptible de vous intéresser

VILLENEUVE EN RETZ (44580) - 98 100 €

COTE IMMOBILIER VILLENEUVE A 3KM5 DE LA MER - ET UNE DIZAINE DE MINUTES DE PORNIC A 500 M DES COMMERCES et A PROXIMITÉ DE LA GARE - Dans un quartier recherché, en impasse - terrain à bâtir d'environ 980 m² - hors lotissement - façade de 27 ml - non viabilisé (viabilisation à la charge exclusive de l'acquéreur) - libre de constructeur - CU positif COTE IMMOBILIER VILLENEUVE 29 - Rue de la Taillée 44580 VILLENEUVE EN RETZ Tél : 02.40.64.34.98 WWW.COTE-IMMOBILIER.COM (9.00 % honoraires

VILLENEUVE EN RETZ (44580) - 61 900 €

COTE IMMOBILIER VILLENEUVE A une dizaine minutes de PORNIC et une trentaine de NANTES - Dans un quartier recherché et apprécié pour sa tranquillité et son environnement de qualité - terrain à bâtir d'environ 300 m² - hors lotissement - viabilisation à la charge de l'acquéreur sauf compteur électricité déjà en place - zone UB du PLU de VILLENEUVE EN RETZ - Façade d'environ 15 ml COTE IMMOBILIER VILLENEUVE 29 - Rue de la Taillée 44 580 VILLENEUVE EN RETZ BOURGNEUF EN RETZ 02.40.64.

Saint Cyr (44580) - 77 900 €

Nouveauté à l'agence ! A moins de 10 minutes de Machecoul, découvrez ce terrain non viabilisé et libre de constructeur, d'une superficie de 570 m² (lot A). Profitez d'une exposition plein sud, idéale pour votre futur projet de construction. Pour plus d'informations, contactez-nous au : 02 52 70 01 10

FRESNAY EN RETZ (44580) - 59 150 €

FRESNAY EN RETZ - Retour à la vente suite à désistement Dans le bourg - environnement calme Petit lotissement de 9 lots - Terrain de 355 m², viabilisé (EDF, SAUR, Tout à l'égout) Renseignements sur demande Ref 4712 Jonathan MAMES (EI) Agent Commercial - Numéro RSAC : EI - 2021AC00061 - .

VILLENEUVE EN RETZ (44580) - 75 950 €

Exclusivité - Proche écoles et commerces, terrain à bâtir de 670 m² à viabiliser en EDF, SAUR, TELECOM et tout à l'égout. Zone Ub du PLU. Libre de constructeurs mais projet de construction en annexe avec les photos. A voir rapidement !! Réf. 3780-SP Votre agent immobilier MPI : Sébastien PORTOLEAU 06.23.85.14.58. Toutes nos annonces sur http://www.meilleurpriximmobilier.com/. Les informations sur les risques auxquels ce bien est exposé sont disponibles sur le site Géorisques : https

Villeneuve-en-Retz (44580) - 203 680 €

ROUTE BLEUE BOURGNEUF EN RETZ - Terrain à bâtir 4601 m² Zone commerciale LES SALINES A vendre terrain à bâtir de 4 600 m2 non viabilisé, non clos, zone commerciale en développement LES SALINES Destination du terrain : commerciale Activités déjà implantées autour du terrain : Camping U Express, station service et de lavage, Leclerc drive, Bar, Contrôle technique Hôtel Restaurant, Pharmacie, Boulangerie, Caviste,Office notariale, cabinet d'avocats,Garage automobile, salon de coiff

Villeneuve-en-Retz (44580) - 126 500 €

Bourg de Fresnay-en-Retz Beau terrain à bâtir clos et arboré avec verger, viabilisé ( eau, électricité, tout à l'égout ), puits privatif. Situé en zone Ub du plan local d'urbanisme. Emprise au sol 60 %, hauteur maximum 6 mètres. Présence d'une dépendance avec salle d'eau et wc. Libre de constructeur. A découvrir. Honoraires inclus de 5.42% TTC à la charge de l'acquéreur. Prix hors honoraires 120 000 €. Les informations sur les risques auxquels ce bien est exposé sont disp

Villeneuve-en-Retz (44580) - 119 000 €

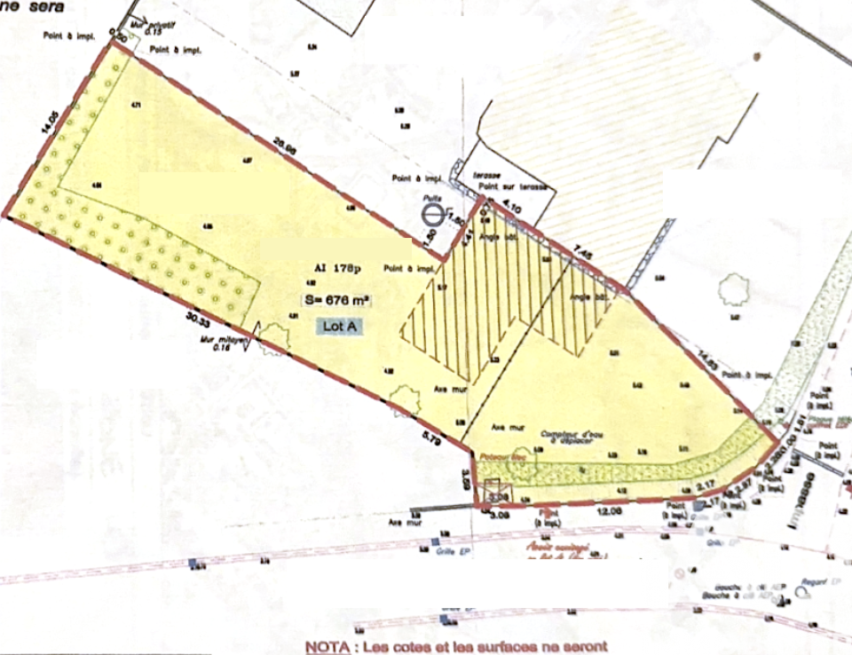
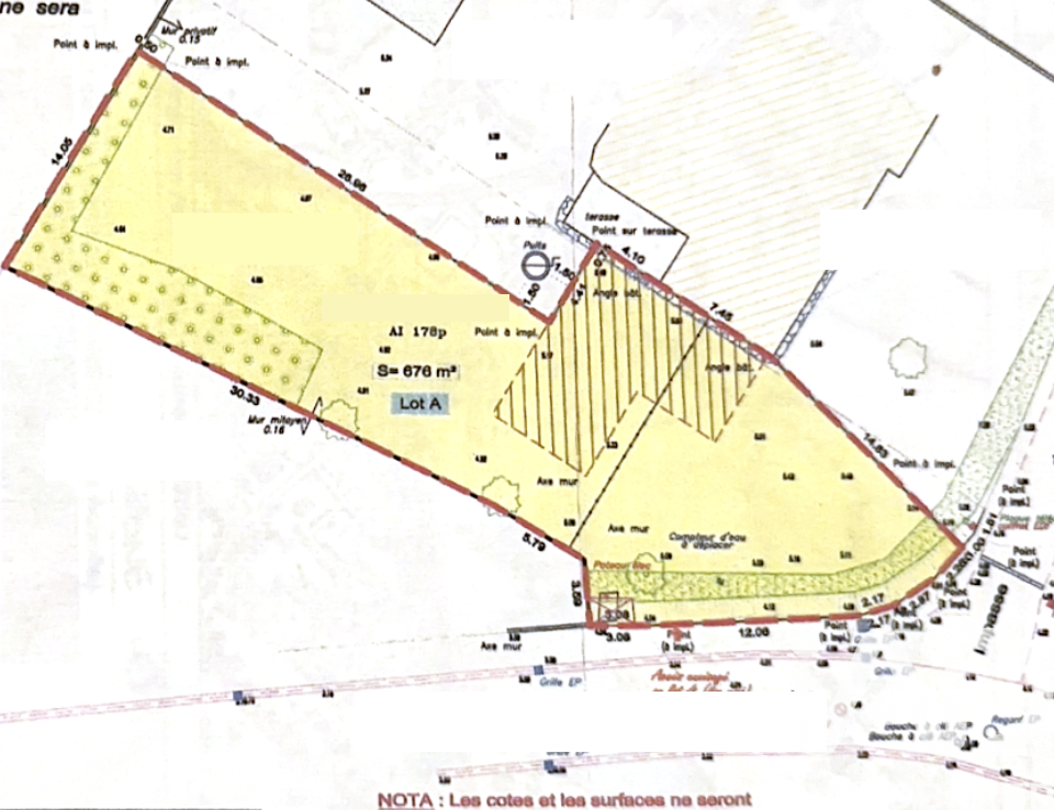
Iad France - Lucie Boue vous propose : Secteur Bourgneuf en Retz - Terrain à Bâtir de 676 m²Ce beau terrain idéalement exposé est proche des commodités et dans un secteur calme.- Libre de constructeur- Zone Ub- compteur d'eau installé et raccordement au tout à l'égout- terrain clôturéA prévoir:*viabilisation en électricité et télécom, les réseaux sont à proximité*raccordementHonoraires d'agence à la charge du vendeur.Bien non soumis au DPE. Les informations sur les risques au

Villeneuve-en-Retz (44580) - 140 000 €

Villeneuve en Retz- Terrain constructible 607m² - Garage existant- Proche toutes commodités Le Studio Immo vous propose ce terrain constructible de 607 m², offrant une surface constructible de 365 m² avec un coefficient d'emprise au sol de 0.99. Ce terrain viabilisé est prêt à accueillir votre projet de vie, avec un permis de construire déjà obtenu, vous permettant de concrétiser votre futur projet rapidement. Avec une façade de 15 ml et 38 ml de profondeur, vous bénéficiez d'un ga

Villeneuve-en-Retz (44580) - 98 000 €

Situé à Villeneuve-en-Retz (44580), ce terrain de 200 m² bénéficie d'un emplacement privilégié au sein d'un parc résidentiel de loisir à seulement 3 km de la mer. Cette charmante commune offre un cadre de vie paisible et une proximité avec des aménagements extérieurs de qualité tels que piscine, tennis, jeux pour enfants, idéal pour les amateurs de plein air.Le terrain abrite un chalet de 60 m² offrant tout le confort nécessaire. Avec 3 chambres, 1 salles d'eau, cuisine aménagé