En vente Maison 4 pièces 91 m2
| Ville | LES SABLES D OLONNE |
| Code postal | 85340 |
| Type de bien | Maison |
| Surface | 91 m2 |
| Nombre de pièces | 4 pièces |
| Prix | 395 625,00 € |
| Informations sur l'annonceur | |
|---|---|
| Annonce de professionnel |
|
| Agence | L'Adresse DYNAMIC IMMOBILIER - L'ADRESSE ARAGO IMMOBILIER Voir toutes les annonces |
| Adresse | 23 boulevard Arago |
| 85100 LES SABLES D OLONNE | |
| Téléphone Fixe | 0251225800 |
| Portable | 0650409490 |
Description
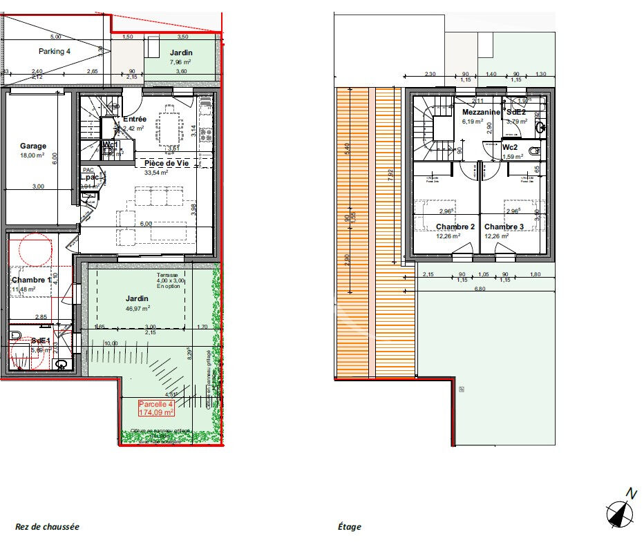
L'Adresse Immobilier, vous propose cette maison neuve en Vente en état futur d'achèvement. Frais de notaire réduit. Elle est composée de 3 Chambres dont une suite parentale au rez-de chaussée. Garage parking et Jardin. Emplacement proche centre ville Olonne sur Mer, prestations de qualité. A découvrir. Renseignement en Agence.
Les photos du bien
Les diagnostics
DPE
| Energie non communiquée |
|---|
GES
| GES non communiqué |
|---|