En vente Bien 7 pièces 258 m2
| Ville | Courbevoie |
| Code postal | 92400 |
| Type de bien | Bien |
| Surface | 258 m2 |
| Nombre de pièces | 7 pièces |
| Prix | 1 119 000,00 € |
| Informations sur l'annonceur | |
|---|---|
| Annonce de professionnel |
|
| Agence | DELECOUR IMMOBILIER Voir toutes les annonces |
| Adresse | 1 Place Paul Verlaine |
| 92100 Boulogne-Billancourt | |
| Négociateur | Marie DELECOUR 92400 Courbevoie |
| Téléphone | 06-66-59-08-44 |
Description
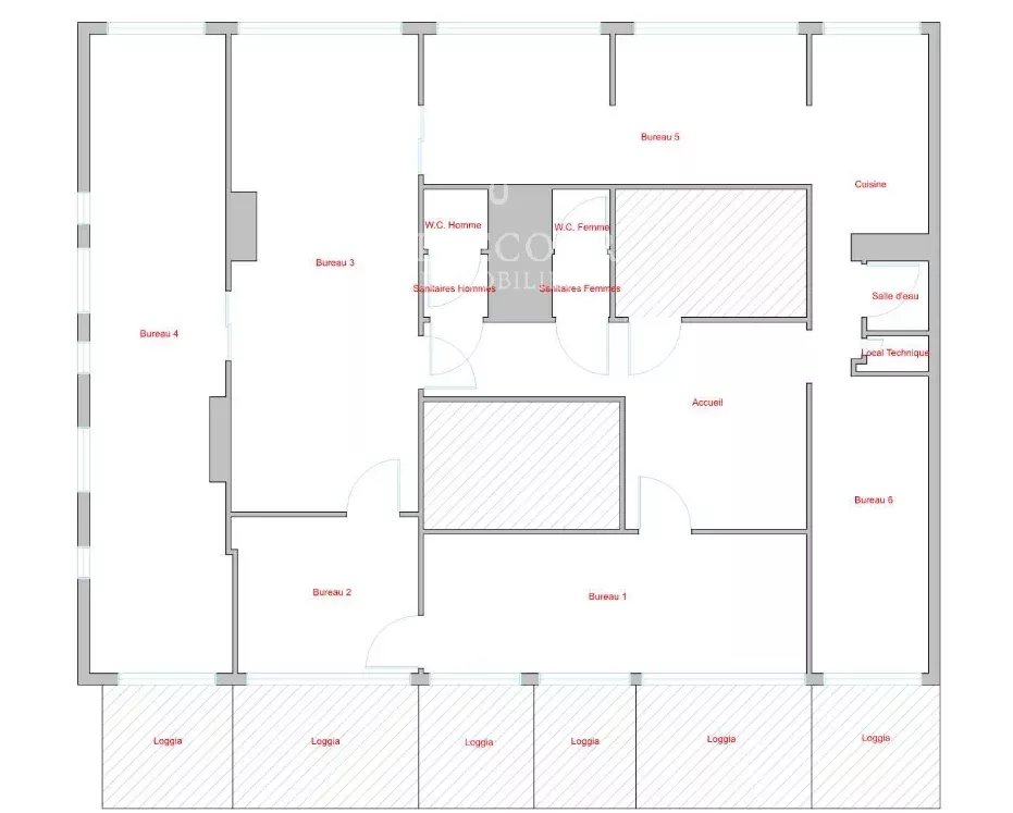
A 5min à pieds du Métro L1, des RER A/E, et à 500m de l'A14 et la N13. A deux pas des écoles, des commerces, du Tram T2 et de la ligne de train L. Dans un immeuble de standing très bien entretenu construit par l'architecte Jean DUBUISSON. Nous vous proposons ce plateau composé de 6 bureaux, d'un accueil, d'une cuisine, d'une salle d'eau, de toilettes et d'une loggia de 31,45m². Vous serez séduit par son état général, sa luminosité et sa vue imprenable sur la Seine. Locaux modulables, sécurisés, dotés de la fibre et d'un cablâge RJ45. Possibilité de reprise du crédit bail permettant une diminution du prix d'acquisition. Possibilité de transformer le plateau en 3 ou 4 appartements. Vendu avec 2 places de parkings en sous-sol. A visiter sans tarder!
Les photos du bien
Les diagnostics
| Bâtiment économe |
|---|
| -2 |
| |
| |
| |
| |
| |
| |
| Bâtiment énergivore |
| en kWh.an/m².an |
| Faible émission de GES* |
|---|
| -2 |
| |
| |
| |
| |
| |
| |
| Forte émission de GES* |
| * Gaz à effet de serre en KgeqCO2/m².an |
Les informations complémentaires
Au pied de la Défense magnifiques bureaux convertibles en appart