En vente Terrain 1335 m2
| Ville | Vaison-la-Romaine |
| Code postal | 84110 |
| Type de bien | Terrain |
| Surface | 1335 m2 |
| Nombre de pièces | |
| Prix | 139 300,00 € |
| Informations sur l'annonceur | |
|---|---|
| Annonce de professionnel |
|
| Agence | Vaison Ventoux Immobilier Voir toutes les annonces |
| Adresse | 5 montée des Genêts |
| 84110 Vaison-la-Romaine | |
| Téléphone Fixe | 0486380212 |
Description
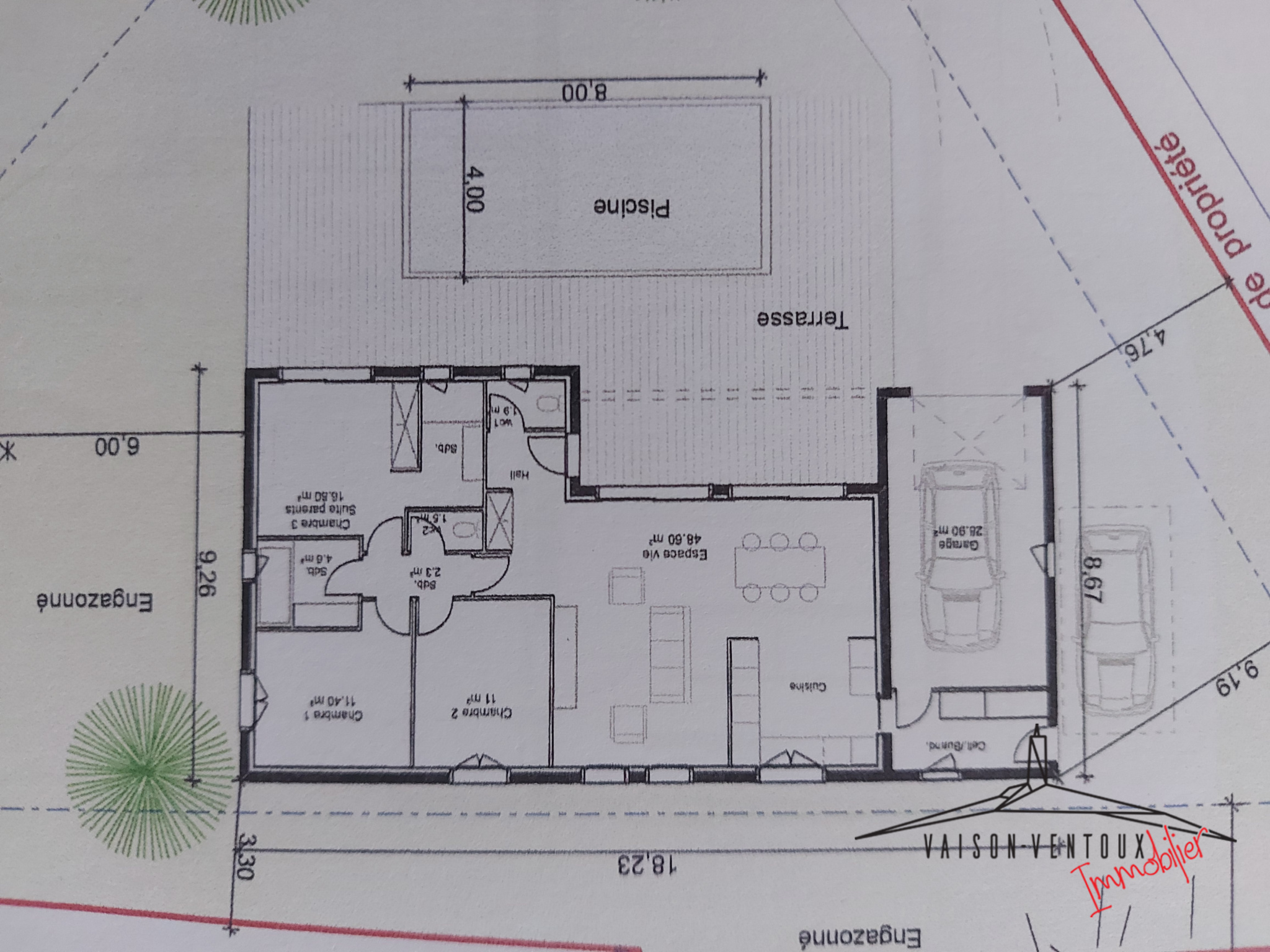
A 5 mn à l'Est de Vaison la Romaine, venez découvrir ce joli terrain de 1350 m2 arboré, exposé plein sud avec un permis de construire pour une habitation de 100m2 habitables, un garage et une piscine. L'habitation est prévue avec un séjour, une cuisine, 3 chambres, une salle d'eau et un wc. Possibilité d'apporter des modifications au permis de construire. Ce terrain est situé au milieu des vignes et non loin d'une rivière. Rare à la vente.
Les photos du bien
Les diagnostics
DPE
| Energie non communiquée |
|---|
GES
| GES non communiqué |
|---|
Les informations complémentaires
Terrain arboré de 1350 m2 avec permis de constuire pour une
Prix de vente honoraires TTC inclus : 139 300 €