En vente Terrain 2775 m2
| Ville | Mouans-Sartoux |
| Code postal | 06370 |
| Type de bien | Terrain |
| Surface | 2775 m2 |
| Nombre de pièces | |
| Prix | 799 000,00 € |
| Informations sur l'annonceur | |
|---|---|
| Annonce de professionnel |
|
| Nom | |
| Adresse | |
| 06110 | |
| Négociateur | Cathy JOLY 06370 Mouans-Sartoux |
| Téléphone | +33623010387 |
Description
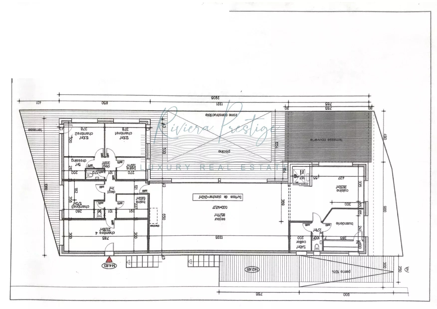
Terrain plat constructible de 2 775 m² situé à Mouans-Sartoux, bénéficiant d’un permis de construire purgé. Ce terrain rare sur le marché est proposé avec un permis accepté pour une villa passive contemporaine de 240 m², incluant déjà un sous-sol de 131 m² réalisé. Le projet initial prévoit une villa moderne avec une cuisine, un cellier, une buanderie, un vaste séjour de 80 m², cinq chambres, deux salles de bains, ainsi qu’un sous-sol pouvant accueillir jusqu’à cinq voitures, équipé d’un ascenseur pour un accès direct à la villa. De plus, le permis inclut la construction d’une piscine de 10 x 5 mètres. Le terrain est libre de constructeur, offrant ainsi la possibilité d’adapter le projet selon vos envies. Idéalement situé à proximité des axes routiers et des commodités, ce terrain offre un cadre de vie privilégié. Plans et documents complémentaires disponibles sur demande. Une opportunité à ne pas manquer !
Les photos du bien
Les diagnostics
| Bâtiment économe |
|---|
| -1 |
| |
| |
| |
| |
| |
| |
| Bâtiment énergivore |
| en kWh.an/m².an |
| Faible émission de GES* |
|---|
| -1 |
| |
| |
| |
| |
| |
| |
| Forte émission de GES* |
| * Gaz à effet de serre en KgeqCO2/m².an |
Les informations complémentaires
Terrain à vendre de 2 775m2