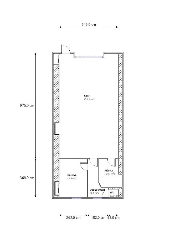
En location Boutique 4 pièces 73 m2
| Ville | L'Escarène |
| Code postal | 06440 |
| Type de bien | Boutique |
| Surface | 73 m2 |
| Nombre de pièces | 4 pièces |
| Prix | 800,00 € |
| Informations sur l'annonceur | |
|---|---|
| Annonce de professionnel |
|
| Nom | |
| Adresse | |
| 06000 | |
| Négociateur | Anthony DEBACQ 06440 L'Escarène |
| Téléphone | +33493884734 |
Description
Placé juste après le pont de l'escarène, (anciennement CAFE BAR) Local a fort potentiel Grande pièce principale avec vitrine Belle réserve séparée avec un coin de stockage visibilité maximum donnant sur la voie principale avec un fort passage routier. Plusieurs activités possibles, café, bar, restaurant, brasserie, boucherie, épicerie, tout type de magasin...
Les photos du bien
Les diagnostics
DPE
| Bâtiment économe |
|---|
| |
| |
| |
| |
| |
| |
| 509 |
| Bâtiment énergivore |
| en kWh.an/m².an |
GES
| Faible émission de GES* |
|---|
| |
| |
| 14 |
| |
| |
| |
| |
| Forte émission de GES* |
| * Gaz à effet de serre en KgeqCO2/m².an |
Les informations complémentaires
Local commercial