En vente Maison 5 pièces 101 m2
| Ville | Nice |
| Code postal | 06000 |
| Type de bien | Maison |
| Surface | 101 m2 |
| Nombre de pièces | 5 pièces |
| Prix | 440 000,00 € |
| Informations sur l'annonceur | |
|---|---|
| Annonce de professionnel |
|
| Nom | |
| Adresse | |
| 06100 | |
| Négociateur | Johanna SEBBAKH 06000 Nice |
| Téléphone | +33603468798 |
Description
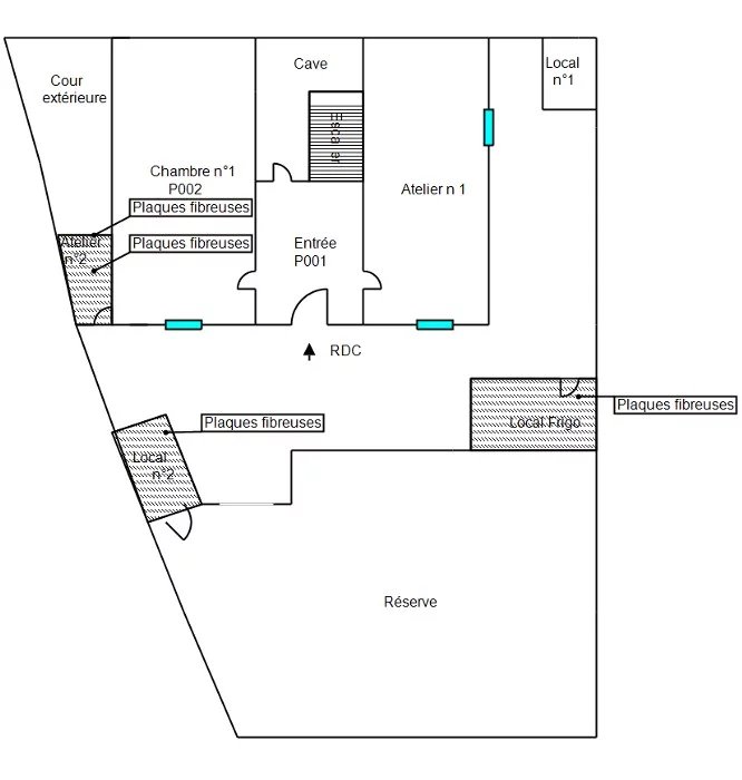
NICE PASTEUR. Maison à rénover de 101m² sur une parcelle de 445m². Actuellement maison où vit un artisan qui a fait son atelier de travail, son bureau et son lieu d'habitation. Elle se compose de 5 pièces, une cuisine, une salle de bain et un WC indépendant. Combles. Espace extérieur composé de locaux, cave, remise, garages. Idéal pour un artisan ayant du matériel à stocker ou souhaitant travailler de chez lui. DPE: D&B. Taxe foncière : 2702€. Exclusivité C&B.
Les photos du bien
Les diagnostics
DPE
| Bâtiment économe |
|---|
| |
| |
| |
| 218 |
| |
| |
| |
| Bâtiment énergivore |
| en kWh.an/m².an |
GES
| Faible émission de GES* |
|---|
| 6 |
| |
| |
| |
| |
| |
| |
| Forte émission de GES* |
| * Gaz à effet de serre en KgeqCO2/m².an |
Les informations complémentaires
Maison/Villa 5 pièces