En vente Maison 6 pièces
| Ville | Saint-Jean-d'Aulps |
| Code postal | 74430 |
| Type de bien | Maison |
| Surface | |
| Nombre de pièces | 6 pièces |
| Prix | 1 150 000,00 € |
| Informations sur l'annonceur | |
|---|---|
| Annonce de professionnel |
|
| Nom | |
| Adresse | |
| 74260 | |
| Négociateur | Morzine Immobilier 74430 Saint-Jean-d'Aulps |
| Téléphone | +33(0)450791309 |
Description
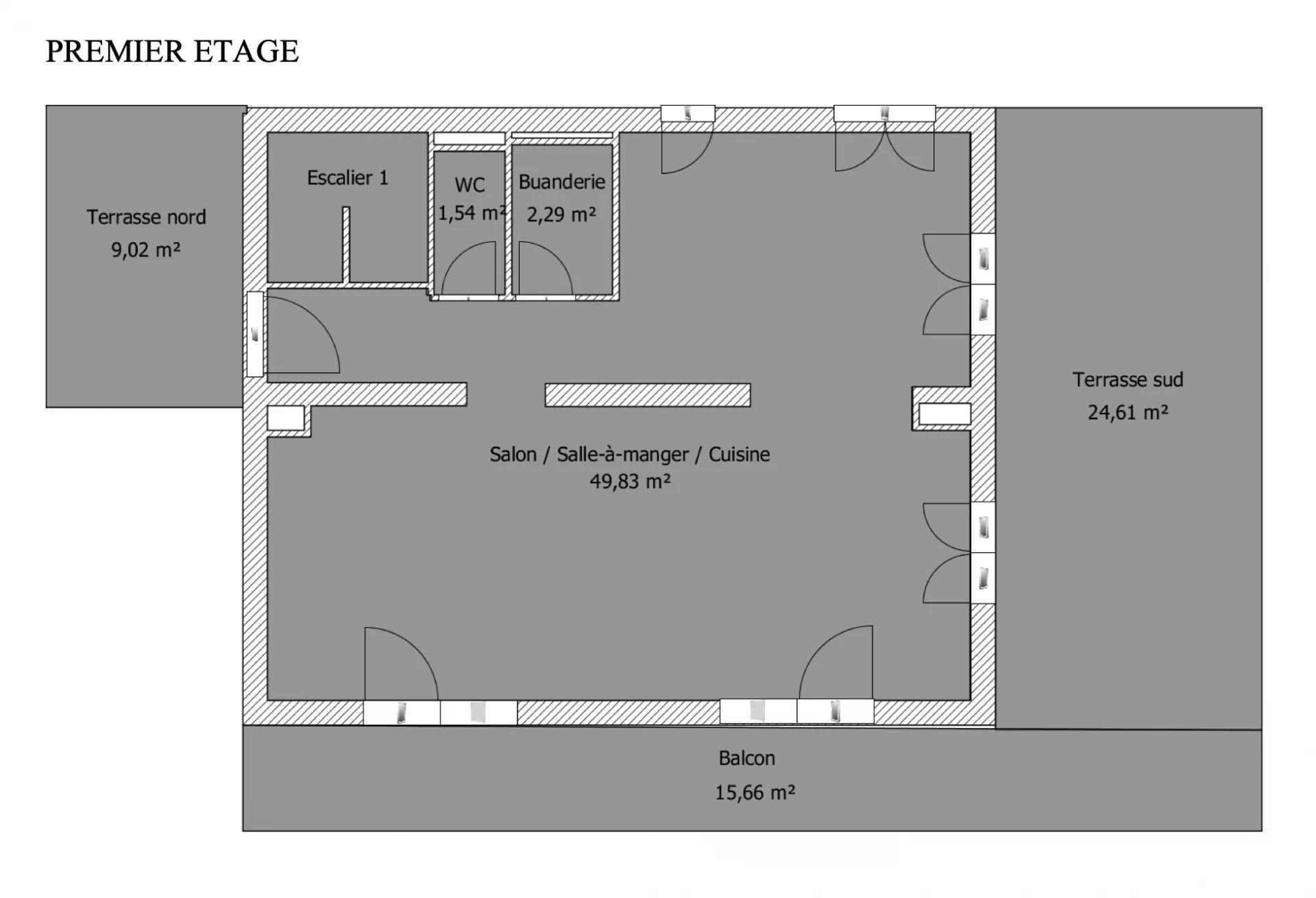
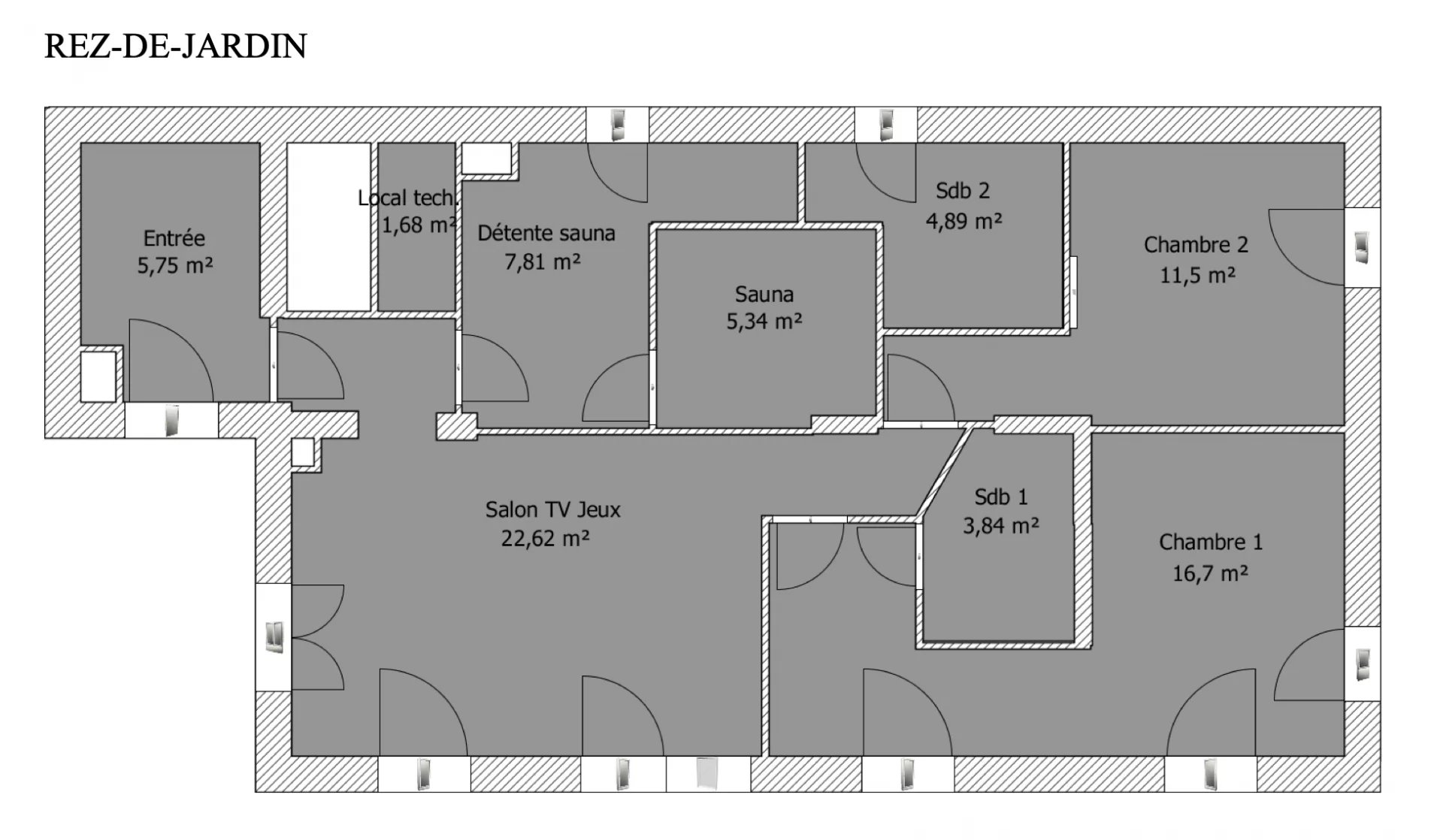
Magnifique chalet de 5 chambres avec une vue panoramique sur les montagnes à Essert la Pierre Ce chalet a été construit en 2010 par un constructeur local gardant le style du chalet alpin à la fois moderne et traditionnel dans le quartier d'Essert la Pierre, village très recherché niché entre Saint Jean d'Aulps et Morzine . Ce chalet est surélevé et offre une magnifique vue sur les montagnes avoisinantes. Son orientation permet de profiter d'un ensoleillement optimal. Essert la Pierre est situé à cinq minutes en voiture de Morzine et de tous ses commerces, bars et restaurants. Le village lui-même est un authentique village savoyard avec ses maisons et chalets traditionnels. Avec une surface habitable de plus de 190 m2, le chalet est réparti sur trois niveaux, et comprend: Au rez-de-chaussée: un hall d'entrée spacieux, , un salon aménagé en salle de jeux/TV (possibilité de faire une 6ème chambre), un local technique, un sauna et 2 chambres en suites. Au premier étage, nous retrouvons une grande pièce de vie de 50m2 ouverte avec cuisine, salle à manger et salon donnant sur une grande terrasse, une buanderie et un WC. Au deuxième étage : 3 chambres doubles supplémentaires avec salle de bain ensuite, un local technique. Le chalet est situé sur un beau terrain de 400 m2 avec une vue imprenable sur les montagnes et le village, étant sur les hauteurs du village. Il donne à l'arrière sur les pâturages et la forêt. zone inconstructible permettant d'assurer la calme pour les prochaines années. Pour plus d'informations, contacter nous à Morzine Immo. Les informations sur les risques auxquels ce bien est exposé sont disponibles sur le site Géorisques http://www.georisques.gouv.fr
Les photos du bien
Les diagnostics
| Bâtiment économe |
|---|
| |
| |
| |
| 211 |
| |
| |
| |
| Bâtiment énergivore |
| en kWh.an/m².an |
| Faible émission de GES* |
|---|
| 6 |
| |
| |
| |
| |
| |
| |
| Forte émission de GES* |
| * Gaz à effet de serre en KgeqCO2/m².an |
Les informations complémentaires
Magnifique chalet de 5 chambres avec une vue panoramique sur les