En vente Appartement 4 pièces 97 m2
| Ville | RENNES |
| Code postal | 35000 |
| Type de bien | Appartement |
| Surface | 97 m2 |
| Nombre de pièces | 4 pièces |
| Prix | 470 000,00 € |
| Informations sur l'annonceur | |
|---|---|
| Annonce de professionnel |
|
| Agence | Vezin Immobilier - Agence Vezin Immobilier Voir toutes les annonces |
| Adresse | 16 Rue Montfort |
| 35132 Vezin Le Coquet | |
| Téléphone Fixe | 0299645120 |
| Portable | 0687489553 |
Description
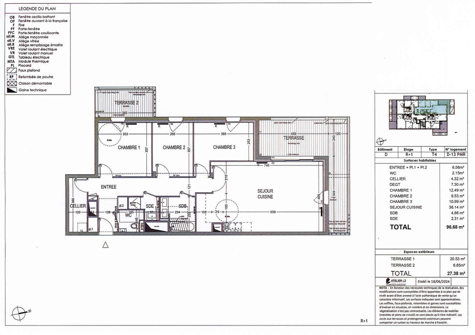
Vezin Immobilier - Livraison 4ème trimestre 2025. En face des Prairies et du Canal Saint Martin, à 10 mn de Rennes centre, dans un cadre paysager unique, à vendre bel appartement T4 de 97 m2 au 1er étage exposé ouest avec une belle terrasse. Il comprend une entrée avec un placard, un beau salon-séjour avec une cuisine ouverte (36.1 m2) donnant sur une belle terrasse exposée (20.5 m2), un cellier, trois chambres (12.5, 11 et 9.5 m2), une salle d'eau, une salle de bains et un wc. Chauffage bois granulés et gaz. 2 places de parking en sous-sol. A découvrir sur notre site internet. Contact Anne Nerbusson : 06 87 48 95 53
Les photos du bien
Les diagnostics
DPE
| Energie non communiquée |
|---|
GES
| GES non communiqué |
|---|