En vente Bien 424 m2
| Ville | Salagnon |
| Code postal | 38890 |
| Type de bien | Bien |
| Surface | 424 m2 |
| Nombre de pièces | |
| Prix | 535 000,00 € |
| Informations sur l'annonceur | |
|---|---|
| Annonce de professionnel |
|
| Agence | PROVIMO - SCHNEIDER Philippe - SCHNEIDER Philippe Voir toutes les annonces |
| Adresse | |
| 38460 TREPT | |
| Téléphone Fixe | 0623012633 |
| Portable |
Description
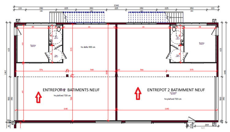
Venez découvrir cet ensemble immobilier constitué de deux entrepôts avec bureaux et deux appartements de type 3 sur un terrain de 880 m2, situé sur la commune de Salagnon au coeur de la zone ARTISANALE, bien positionné en bordure de la Départementale 522 qui rejoint la D 517 et relie BOURGOIN-MORESTEL et offrant un accès très facile. Descriptif : - un premier entrepôt construit en 2018 de 100 m2 avec mezzanine de 29.50 m2, bureaux de 16 m2, dégagement de 2.10 m2 et salle d'eau avec toilette de 2.81 m, soit une surface globale de 151m. Le bien est loué, sous bail pour une valeur de 1000 euros HT / mois. - un deuxième entrepôt construit en 2018 de 100 m2 avec mezzanine de 29.50 m2, bureaux de 16 m2, dégagement de 2.10 m2 et salle d'eau avec toilette de 2.81 m, soit une surface globale de 151m2. Le bien est loué, sous bail pour une valeur de 1000 euros HT / mois. - un premier appartement de 61 m 2 comprenant un salon séjour de 30 m2, 2 chambres de 12 et 13 m2, une salle de bain de 4.70 m2 et un cabinet de toilette. Le bien est loué, sous bail pour un loyer de 650 euros /mois non soumis à tva car loué à un particulier. (Classé b) - un deuxième appartement de 61 m 2 comprenant un salon séjour de 30 m2, 2 chambres de 12 et 13 m2, une salle de bain de 4.70 m2 et un cabinet de toilette. Le bien est loué, sous bail pour un loyer de 500 euros /mois non soumis à tva car loué à un particulier. (Classé b) Vente non soumises à TVA. Pour plus d'informations, me contacter au 06.23.01.26.33. Philippe SCHNEIDER (EI) Agent Commercial - Numéro RSAC : 525320131 - VIENNE.
Les photos du bien
Les diagnostics
| Bâtiment économe |
|---|
| |
| 88 |
| |
| |
| |
| |
| |
| Bâtiment énergivore |
| en kWh.an/m².an |
| Faible émission de GES* |
|---|
| 2 |
| |
| |
| |
| |
| |
| |
| Forte émission de GES* |
| * Gaz à effet de serre en KgeqCO2/m².an |