En vente Maison 8 pièces
| Ville | La Guerche-sur-l'Aubois |
| Code postal | 18150 |
| Type de bien | Maison |
| Surface | |
| Nombre de pièces | 8 pièces |
| Prix | 154 000,00 € |
| Informations sur l'annonceur | |
|---|---|
| Annonce de professionnel |
|
| Agence | Conort Immobilier Voir toutes les annonces |
| Adresse | 10 Rue Ferdinand Gambon |
| 58000 Nevers | |
| Négociateur | Hervé CONORT 18150 La Guerche-sur-l'Aubois |
| Téléphone | 06-51-30-43-18 |
Description
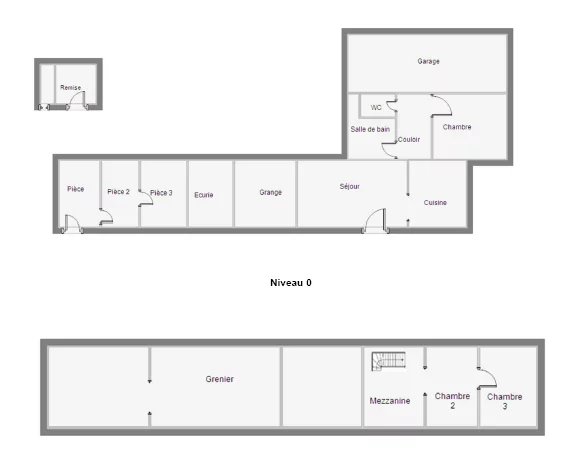
Longère indépendante dominant un étang et entouré de près sur une surface 37348 m². les bâtiments de plus de 35 m de long comprennent une partie habitable avec quelques travaux, comprenant: un séjour de 27m² avec cheminée et mezzanine de 22m², à la suite cuisine aménagée donnant sur terrasse couverte idéale l'été. Couloir à la suite qui distribue une salle de bains , un Wc , une chambre de 15m² , et un garage de 30m². A l'étage , à la suite de la mezzanine deux chambres en enfilade de 19 et 20m². l'installation électrique est prête pour un chauffage. Les Bâtiments se prolongent à l'Ouest par une grange, une écurie , deux chambres et une cuisine, le tout d'une superficie d'environ 90m² , le tout couverts par un grenier de 64m². Cette deuxième partie est en plutôt mauvais état intérieur. Un projet de rénovation avait été fait en 1986. La toiture est en bon état voir photos. Un plan est disponible dans le reportage photo. De vastes prés entourent la propriété. L'endroit est calme et se situe à proximité de la Guerche sur l'Aubois ou vous y trouverez les services nécessaires (supermarché, pharmacie, boulanger pâtissier )... N'hésitez pas a nous contacter pour organiser une visite.
Les photos du bien
Les diagnostics
| Energie non communiquée |
|---|
| Faible émission de GES* |
|---|
| 2 |
| |
| |
| |
| |
| |
| |
| Forte émission de GES* |
| * Gaz à effet de serre en KgeqCO2/m².an |
Les informations complémentaires
Longère entourée de 3h7 de près