En vente Local 819 m2
| Ville | SERRES CASTET |
| Code postal | 64121 |
| Type de bien | Local |
| Surface | 819 m2 |
| Nombre de pièces | |
| Prix | 603 200,00 € |
| Informations sur l'annonceur | |
|---|---|
| Annonce de professionnel |
|
| Agence | CPC Invest - Monein Voir toutes les annonces |
| Adresse | 33 rue du commerce |
| 64360 MONEIN | |
| Téléphone Fixe | 0559902491 |
Description
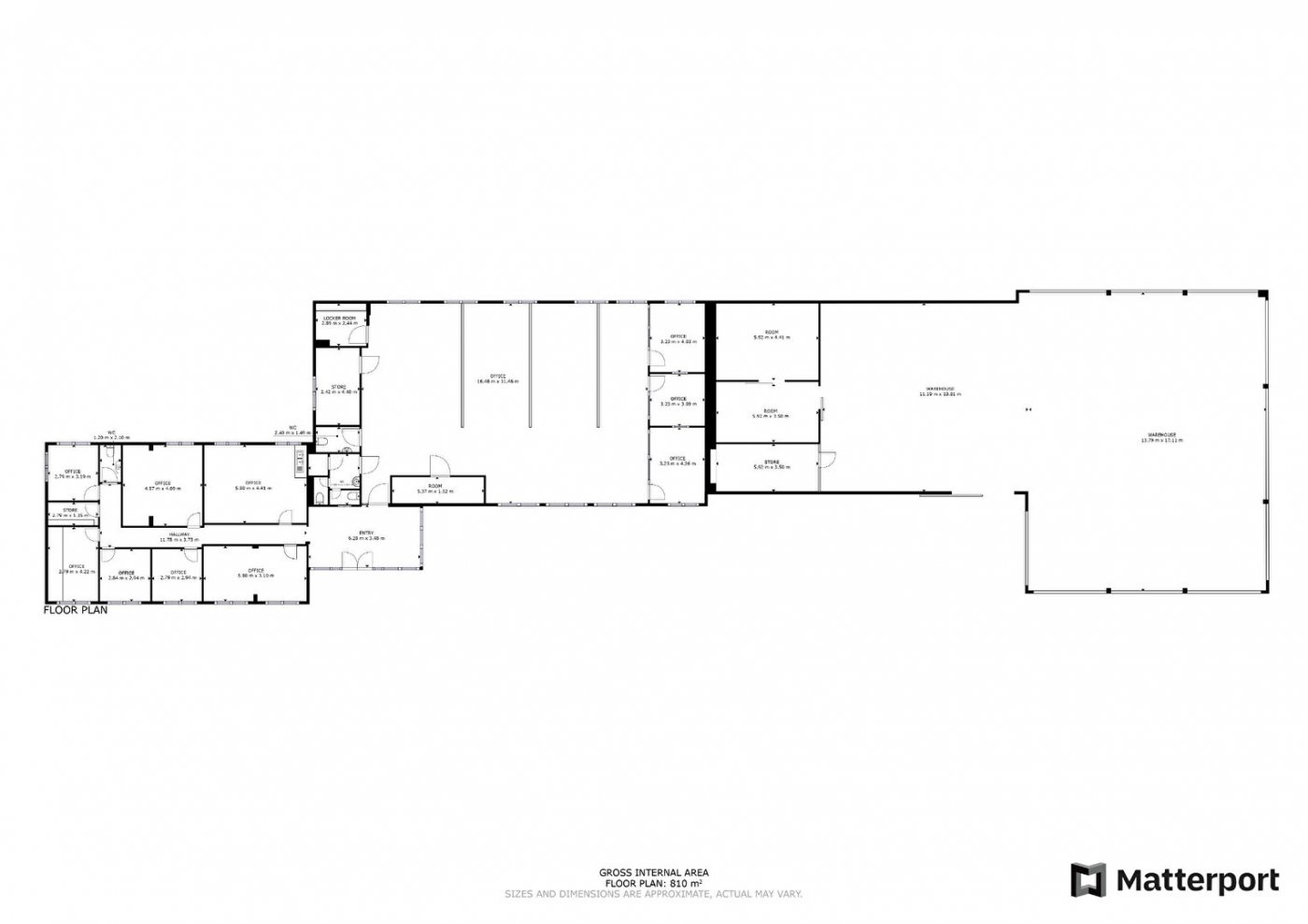
Local commercial en bon état d'une surface de 819 m2 comprenant des bureaux (surface d'environ 401 m2) et un entrepôt (surface d'environ 418 m2), situé dans une zone industrielle et commerciale à proximité de la bretelle d'autoroute. Le terrain d'une superficie d'environ 3 659 m2 comprend de nombreux emplacements de stationnement entièrement goudronné et des espaces verts. Bâtiment accessible aux camions de toutes tailles et terrain entièrement clôturé. Prix HT frais d'agence inclus.
Agent commercial immobilier.
Les informations sur les risques auxquels ce bien est exposé sont disponibles sur le site Géorisques : www.georisques.gouv.fr