En vente Appartement 1 pièce
| Ville | Paris 17ème |
| Code postal | 75017 |
| Type de bien | Appartement |
| Surface | |
| Nombre de pièces | 1 pièce |
| Prix | 315 000,00 € |
| Informations sur l'annonceur | |
|---|---|
| Annonce de professionnel |
|
| Nom | |
| Adresse | |
| 75018 | |
| Portable | 0661627936 |
Description
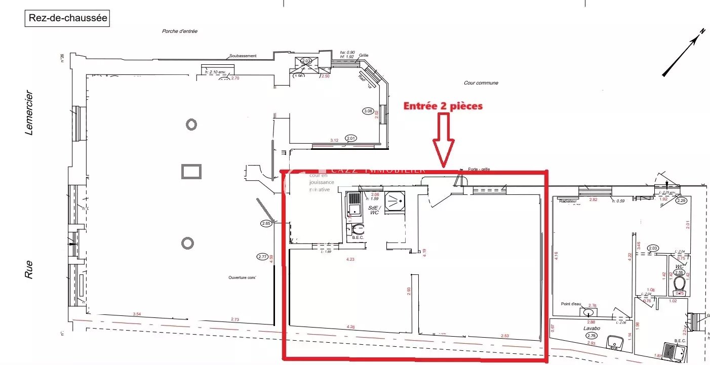
26 rue Lemercier (quartier Batignolles) - Au sein d'une magnifique et grande cour (pavée et arborée), profite d'un calme olympien - Ce 2 pièces de 37m² à rénover (en cours de curage), au fort potentiel, à un accès indépendant depuis la cour - Actuellement, il est composé d'une porte d'entrée vitrée + fenêtre pour le séjour/cuisine (sans vis à vis), une chambre avec fenêtre sur courette, une salle d'eau avec wc (fenêtre) - Charges 141€/mois - Chauffage électrique
Les photos du bien
Les diagnostics
DPE
| Energie non communiquée |
|---|
GES
| Faible émission de GES* |
|---|
| -1 |
| |
| |
| |
| |
| |
| |
| Forte émission de GES* |
| * Gaz à effet de serre en KgeqCO2/m².an |