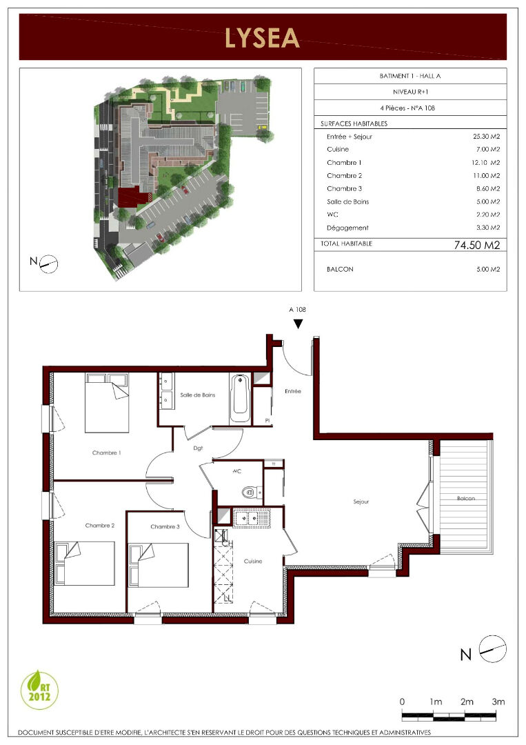
En vente Appartement 4 pièces 74 m2
| Ville | VILLIERS LE BEL |
| Code postal | 95400 |
| Type de bien | Appartement |
| Surface | 74 m2 |
| Nombre de pièces | 4 pièces |
| Prix | 240 000,00 € |
| Informations sur l'annonceur | |
|---|---|
| Annonce de professionnel |
|
| Agence | PICHET Paris 8 Voir toutes les annonces |
| Adresse | |
| 75008 Paris | |
| Téléphone Fixe | 0153819599 |
Description
Au coeur d'une résidence récente et sécurisée, nous vous présentons ce spacieux appartement 4 pièces, situé au 1er étage avec ascenseur. Vous serez séduit par son grand séjour lumineux ouvrant sur un agréable balcon, parfait pour vos moments de détente. La cuisine, indépendante et fonctionnelle, offre de belles possibilités d'aménagement. Côté nuit, vous profiterez de trois chambres confortables, et d'une salle de bain et wc séparé. Deux places de parking en sous-sol viennent compléter ce bien. L'appartement est vendu loué, avec un loyer hors charges de 1 134,15 euros par mois, représentant une excellente opportunité d'investissement locatif clé en main. Le bail en cours prendra fin le 30 décembre 2025, ce qui permet de notifier un congé au locataire au plus tard le 30 juin 2025, conformément aux délais légaux. Prix de vente : 240 000 euros FAI. N'attendez plus pour en savoir plus ou organiser une visite ! Contactez-nous dès aujourd'hui !