En vente Boutique 3 pièces 99 m2
| Ville | Antibes |
| Code postal | 06600 |
| Type de bien | Boutique |
| Surface | 99 m2 |
| Nombre de pièces | 3 pièces |
| Prix | 345 000,00 € |
| Informations sur l'annonceur | |
|---|---|
| Annonce de professionnel |
|
| Nom | |
| Adresse | |
| 06600 | |
| Portable | 0647793579 |
Description
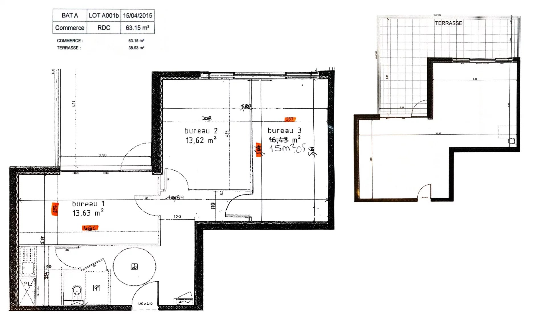
Antibes - Local de 63 m² actuellement utilisé en cabinet médical, idéalement situé à proximité immédiate de l'hôpital. Dans une construction récente, aux normes PMR et facilement accessible étant au rez-de-chaussée, il se compose de trois espaces de consultations, d’une salle d’attente d’une capacité d’accueil de 6 personnes, d’un WC et un espace privé avec kitchenette. Une large terrasse de 33 m² et un triple parking en sous-sol sécurisé complète ce bien.
Les photos du bien
Les diagnostics
DPE
| Bâtiment économe |
|---|
| 63 |
| |
| |
| |
| |
| |
| |
| Bâtiment énergivore |
| en kWh.an/m².an |
GES
| GES non communiqué |
|---|