En vente Appartement 3 pièces 70 m2
| Ville | Sceaux |
| Code postal | 92330 |
| Type de bien | Appartement |
| Surface | 70 m2 |
| Nombre de pièces | 3 pièces |
| Prix | 690 000,00 € |
| Informations sur l'annonceur | |
|---|---|
| Annonce de professionnel |
|
| Nom | |
| Adresse | |
| 92110 | |
| Téléphone Fixe | 0177371038 |
Description
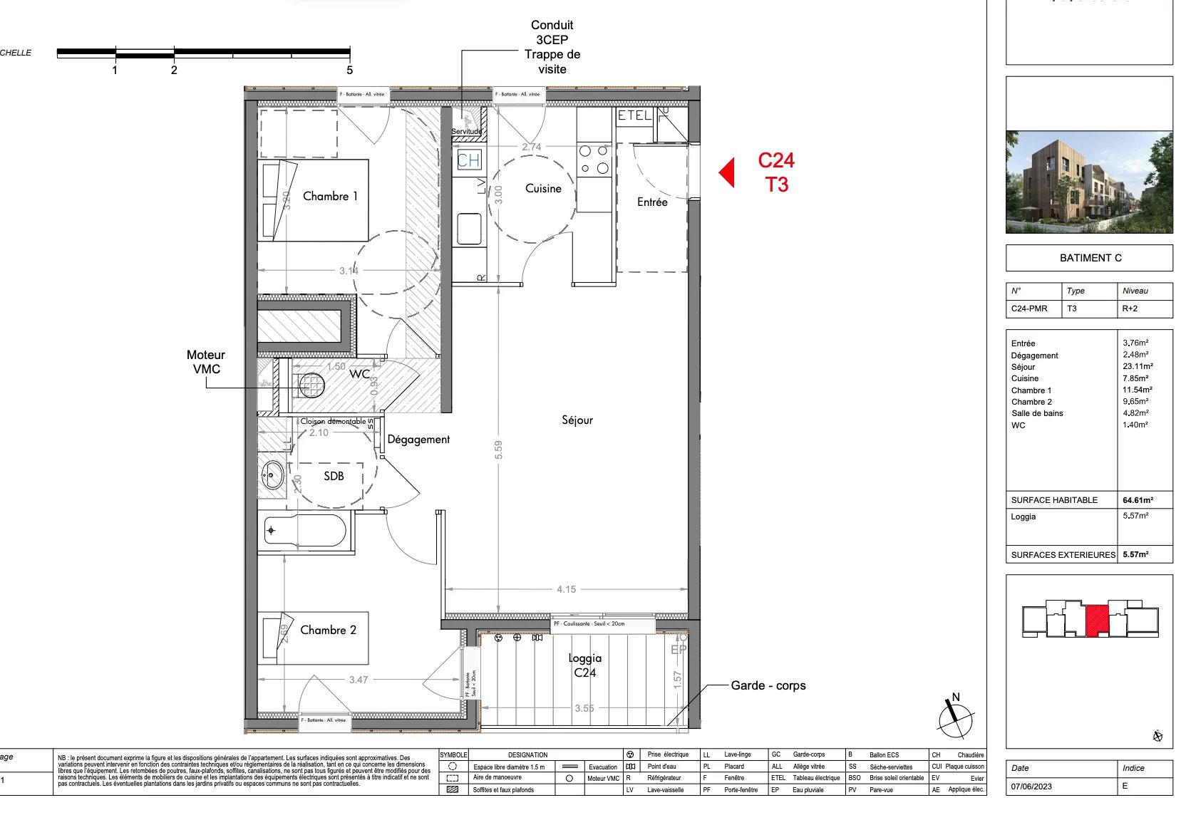
Appartement de 64,61m2, composé d'un séjour de 23,11m2 et d'une cuisiné indépendante de 7,54, de 2 chambres et d'une loggia donnant sur une des chambres et le séjour. Cette résidence est à 2 pas du parc de Sceaux et proche de la cité scolaire et des commerces.
Les photos du bien
Les diagnostics
DPE
| Bâtiment économe |
|---|
| 50 |
| |
| |
| |
| |
| |
| |
| Bâtiment énergivore |
| en kWh.an/m².an |
GES
| Faible émission de GES* |
|---|
| 5 |
| |
| |
| |
| |
| |
| |
| Forte émission de GES* |
| * Gaz à effet de serre en KgeqCO2/m².an |