En vente Terrain

Ville Aubagne
Code postal 13400
Type de bien Terrain
Surface
Nombre de pièces
Prix 277 000,00 €
Informations sur l'annonceur
Annonce de professionnel
Nom
Adresse
84300
Négociateur Michel PUISSERVERT
13400 Aubagne
Téléphone +33634582641

Description

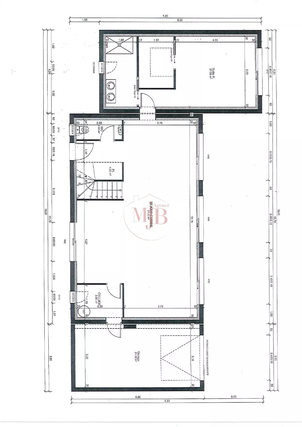
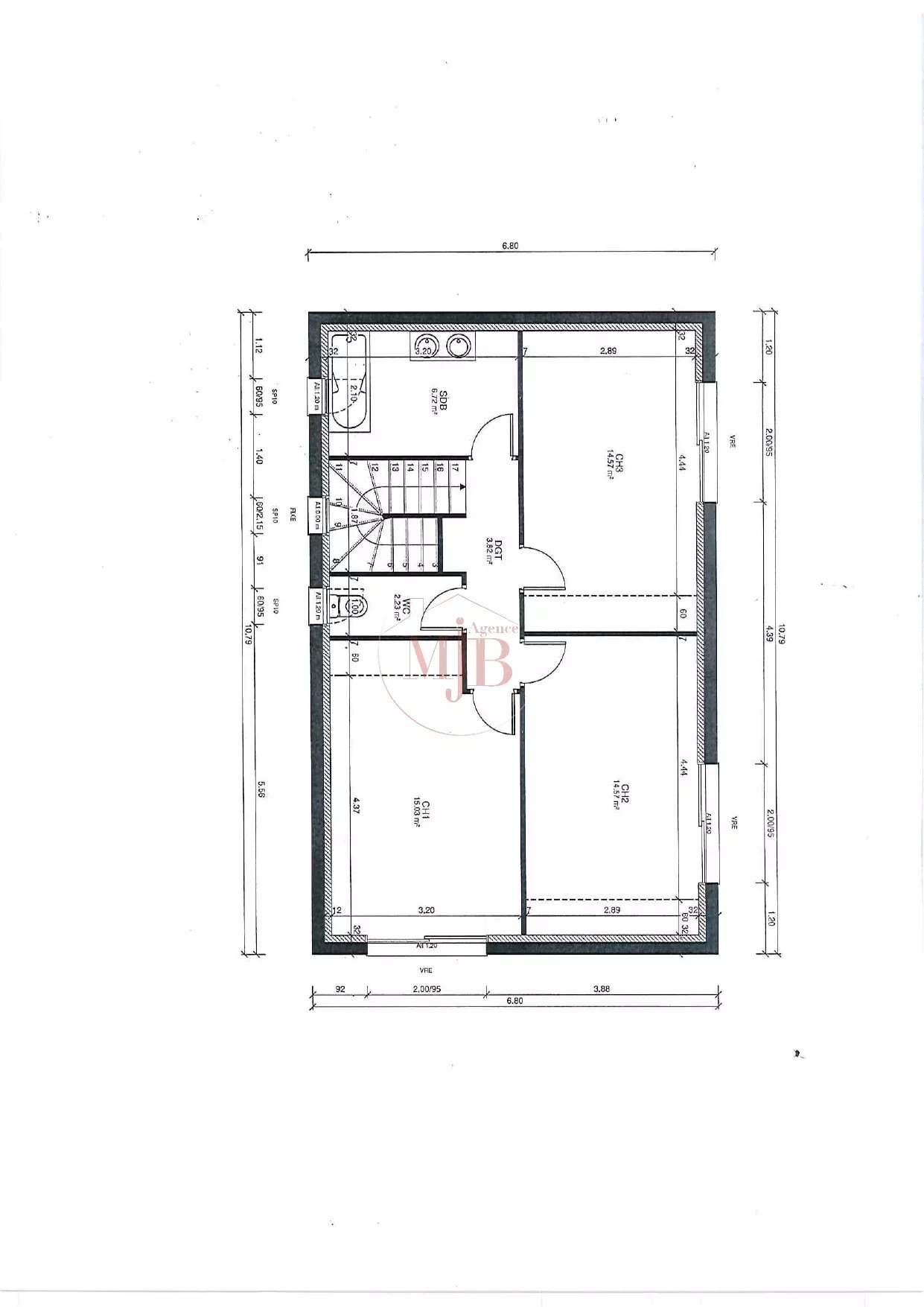
RARE A LA VENTE - LIBRE CHOIX CONSTRUCTEUR . Dans quartier résidentiel très recherché, à proximité de toutes commodités (écoles , commerces et aussi chemins de randonnées ), au calme absolu sans aucune nuisance , superbe terrain plat , en position dominante d'une surface de 1100 m2 , vendu avec Permis de Construire et recours des tiers obtenus . La construction se réalise sur deux niveaux selon la distribution suivante : en rez de chaussée un salon séjour 50 M2 environ , une belle suite parentale de 27 M2 , un cellier , WC et garage , à l étage trois chambres , une salle de bain et WC . Informations complémentaires : Viabilités en bordure du terrain . Assainissement individuel fosse septique SDP 145,97 m2. Possibilité piscine . Idéal pour les amoureux de la nature, espaces randonnée/loisirs accessibles à pied depuis la maison. Libre choix constructeur. Honoraires charge vendeurs. Contact 06 34 58 26 41

Les photos du bien

Les diagnostics


DPE
Energie non communiquée
GES
GES non communiqué

Les informations complémentaires

Terrain