En vente Appartement 3 pièces 75 m2

Ville Nice
Code postal 06000
Type de bien Appartement
Surface 75 m2
Nombre de pièces 3 pièces
Prix 395 000,00 €
Informations sur l'annonceur
Annonce de professionnel
Nom
Adresse
06000

Description

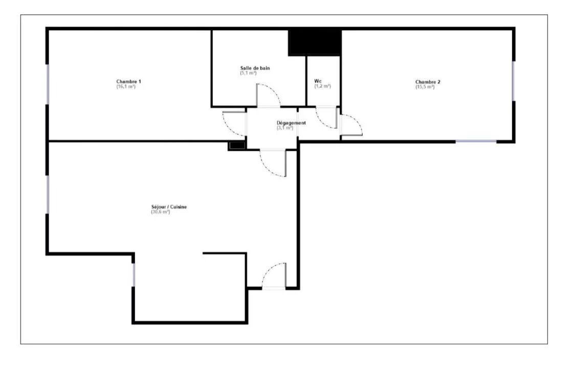
Nice – Musiciens ART DECO / Thiers | 3 pièces 72 m² – Calme absolu – Situé dans le quartier recherché des Musiciens / Thiers, au sein d’une copropriété Art Déco avec ascenseur, ce bel appartement de 3 pièces d’environ 72 m² vous séduira par son charme authentique et son calme absolu (aucune pièce ne donne sur la rue). Il se compose de : • Une pièce de vie avec cuisine ouverte • Deux grandes chambres • Une belle hauteur sous plafond qui renforce la sensation d’espace • Une salle de bains et douche et WC séparés Atouts majeurs : • Très calme (donnant sur cour) • Parquet ancien, belle hauteur sous plafond • Ascenseur • Idéal résidence principale ou pied-à-terre au cœur de Nice À proximité immédiate des transports, commerces, restaurants, et du centre ICONIC.

Les photos du bien

Les diagnostics


DPE
Bâtiment économe
190
Bâtiment énergivore
en kWh.an/m².an
GES
Faible émission de GES*
28
Forte émission de GES*
* Gaz à effet de serre en KgeqCO2/m².an

Contacter